いとうビルの貸事務所・賃貸オフィス情報
いとうビルの貸事務所・賃貸オフィス情報
いとうビル
- 旧耐震基準
いとうビルの空室フロアリスト
| 階数 | 面積 | 賃料+共益費 | 保証金 | 入居時期 | 更新料 | 償却費 | 礼金 | 検討 | 平面図 | 詳細 |
|---|---|---|---|---|---|---|---|---|---|---|
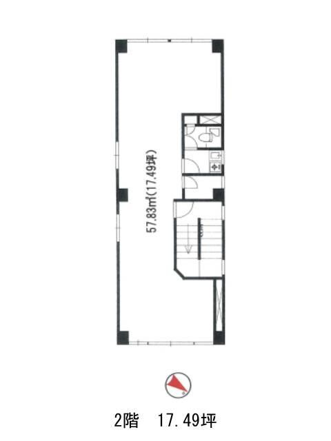
| 5 | 17.49坪 |
209,000円11,950円/坪
|
76万円
|
即 | なし | なし | 1ケ月 |
いとうビルの物件情報
いとうビル(渋谷区恵比寿)は恵比寿駅徒歩3分、代官山駅徒歩11分の賃貸オフィスです。
いとうビルのアクセス
いとうビルの募集終了区画
| 階数 | 面積 | 賃料+共益費 | 保証金 | 入居時期 | 更新料 | 償却費 | 礼金 | 平面図 | 詳細 |
|---|---|---|---|---|---|---|---|---|---|
| 2 | 17.49坪 | − | − | 募集終了 | − | − | − |


