Planex Wattの貸事務所・賃貸オフィス情報
Planex Wattの貸事務所・賃貸オフィス情報
Planex Watt
- エレベーター
- 個別空調
- 駐車場
- 新耐震基準
Planex Wattの空室フロアリスト
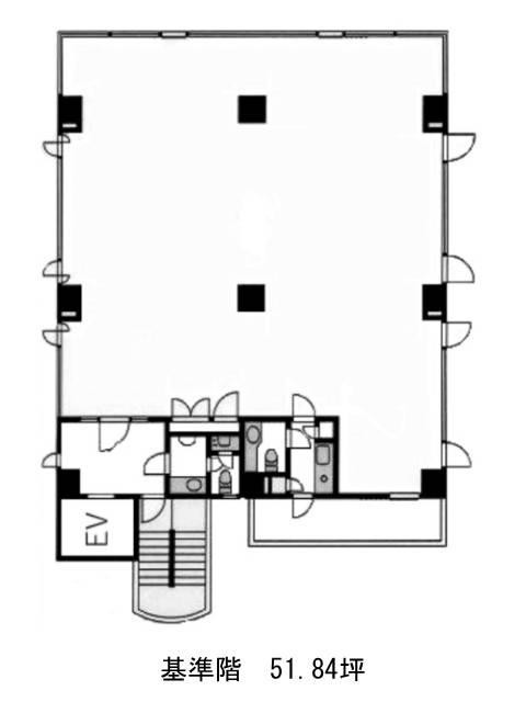
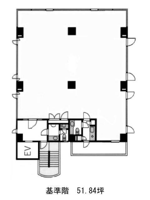
| 階数 | 面積 | 賃料+共益費 | 保証金 | 入居時期 | 更新料 | 償却費 | 礼金 | 検討 | 平面図 | 詳細 |
|---|---|---|---|---|---|---|---|---|---|---|
| 2 | 51.84坪 |
1,679,616円32,400円/坪
|
931万円
|
即 | 新1ケ月 | 1ケ月 | 1ケ月 |
Planex Wattの物件情報
Planex Watt(渋谷区恵比寿南)は恵比寿駅徒歩4分、代官山駅徒歩11分の賃貸オフィスです。
Planex Wattのアクセス
Planex Wattの募集終了区画
| 階数 | 面積 | 賃料+共益費 | 保証金 | 入居時期 | 更新料 | 償却費 | 礼金 | 平面図 | 詳細 |
|---|---|---|---|---|---|---|---|---|---|
| 1 | 35.29坪 | − | − | 募集終了 | − | − | − | ||
| 3 | 51.84坪 | − | − | 募集終了 | − | − | − | ||
| 4 | 51.84坪 | − | − | 募集終了 | − | − | − | ||
| 5 | 21.65坪 | − | − | 募集終了 | − | − | − |


