Giraffa(ジラッファ)の貸事務所・賃貸オフィス情報
Giraffa(ジラッファ)の貸事務所・賃貸オフィス情報
Giraffa(ジラッファ)
- エレベーター
- 個別空調
- 駐車場
- 新耐震基準
Giraffa(ジラッファ)の空室フロアリスト
| 階数 | 面積 | 賃料+共益費 | 保証金 | 入居時期 | 更新料 | 償却費 | 礼金 | 検討 | 平面図 | 詳細 |
|---|---|---|---|---|---|---|---|---|---|---|
| 9 | 55.02坪 |
1,634,094円29,700円/坪
|
1265万円
|
2026年8月上旬 | なし | なし | なし |
Giraffa(ジラッファ)の物件情報
Giraffa(ジラッファ)(渋谷区広尾)は恵比寿駅徒歩8分、広尾駅徒歩11分、代官山駅徒歩15分の賃貸オフィスです。
Giraffa(ジラッファ)のアクセス
Giraffa(ジラッファ)の条件に近い物件
Giraffa(ジラッファ)の募集終了区画
| 階数 | 面積 | 賃料+共益費 | 保証金 | 入居時期 | 更新料 | 償却費 | 礼金 | 平面図 | 詳細 |
|---|---|---|---|---|---|---|---|---|---|
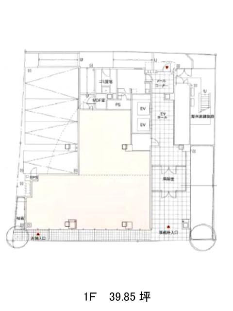
| 1 | 39.85坪 | − | − | 募集終了 | − | − | − | ||
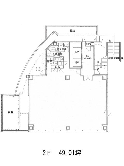
| 2 | 49.01坪 | − | − | 募集終了 | − | − | − | ||
| 3 | 55.02坪 | − | − | 募集終了 | − | − | − | ||
| 4 | 55.02坪 | − | − | 募集終了 | − | − | − | ||
| 5 | 55.02坪 | − | − | 募集終了 | − | − | − | ||
| 6 | 55.02坪 | − | − | 募集終了 | − | − | − | ||
| 7 | 55.02坪 | − | − | 募集終了 | − | − | − | ||
| 8 | 55.02坪 | − | − | 募集終了 | − | − | − | ||
| 10 | 55.02坪 | − | − | 募集終了 | − | − | − | ||
| 11 | 48.78坪 | − | − | 募集終了 | − | − | − | ||
| 12 | 24.80坪 | − | − | 募集終了 | − | − | − |


