越山LKビルの貸事務所・賃貸オフィス情報
越山LKビルの貸事務所・賃貸オフィス情報
越山LKビル
- エレベーター
- 個別空調
- 新耐震基準
越山LKビルの空室フロアリスト
| 階数 | 面積 | 賃料+共益費 | 保証金 | 入居時期 | 更新料 | 償却費 | 礼金 | 検討 | 平面図 | 詳細 |
|---|---|---|---|---|---|---|---|---|---|---|
| 6 | 68.35坪 |
2,105,178円30,800円/坪
|
170万円
|
2026年5月上旬 | 新1ケ月 | なし | なし |
越山LKビルの物件情報
越山LKビル(渋谷区広尾)は広尾駅徒歩9分、恵比寿駅徒歩10分の賃貸オフィスです。
越山LKビルのアクセス
越山LKビルの募集終了区画
| 階数 | 面積 | 賃料+共益費 | 保証金 | 入居時期 | 更新料 | 償却費 | 礼金 | 平面図 | 詳細 |
|---|---|---|---|---|---|---|---|---|---|
| 地下1 | 47.44坪 | − | − | 募集終了 | − | − | − | ||
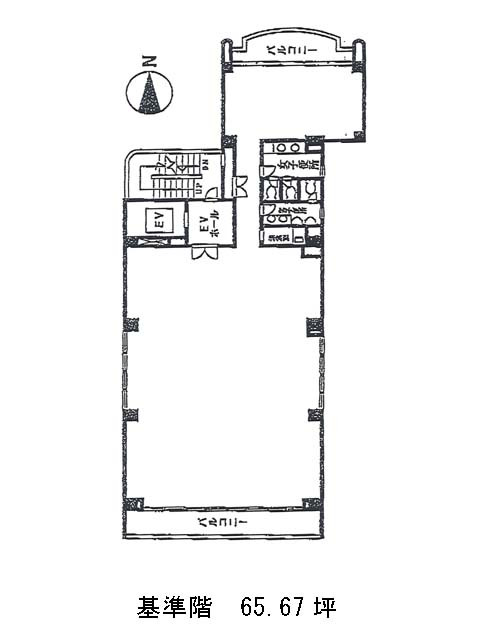
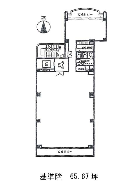
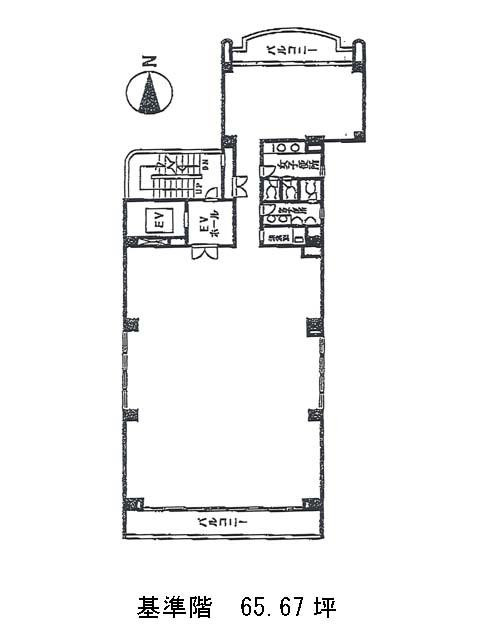
| 2 | 65.67坪 | − | − | 募集終了 | − | − | − | ||
| 3 | 68.35坪 | − | − | 募集終了 | − | − | − | ||
| 4 | 68.35坪 | − | − | 募集終了 | − | − | − | ||
| 5 | 65.67坪 | − | − | 募集終了 | − | − | − | ||
| 7 | 65.67坪 | − | − | 募集終了 | − | − | − |


