丸木ビルの貸事務所・賃貸オフィス情報
丸木ビルの貸事務所・賃貸オフィス情報
丸木ビル
- エレベーター
- 駐車場
- 新耐震基準
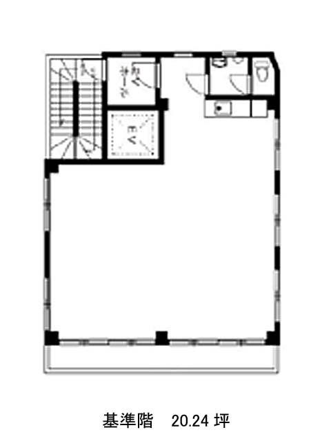
丸木ビルの空室フロアリスト
| 階数 | 面積 | 賃料+共益費 | 保証金 | 入居時期 | 更新料 | 償却費 | 礼金 | 検討 | 平面図 | 詳細 |
|---|---|---|---|---|---|---|---|---|---|---|
| 4 | 20.23坪 |
220,000円10,875円/坪
|
60万円
|
2026年1月下旬 | 新1ケ月 | なし | 1ケ月 |
丸木ビルの物件情報
丸木ビル(新宿区山吹町)は江戸川橋駅徒歩5分、早稲田駅徒歩11分、神楽坂駅徒歩12分の賃貸オフィスです。
丸木ビルのアクセス
丸木ビルの募集終了区画
| 階数 | 面積 | 賃料+共益費 | 保証金 | 入居時期 | 更新料 | 償却費 | 礼金 | 平面図 | 詳細 |
|---|---|---|---|---|---|---|---|---|---|
| 2 | 20.23坪 | − | − | 募集終了 | − | − | − | ||
| 3 | 20.24坪 | − | − | 募集終了 | − | − | − |


