エヌケイビルの貸事務所・賃貸オフィス情報
エヌケイビルの貸事務所・賃貸オフィス情報
エヌケイビル
- エレベーター
- 個別空調
- 駐車場
- 新耐震基準
エヌケイビルの空室フロアリスト
| 階数 | 面積 | 賃料+共益費 | 保証金 | 入居時期 | 更新料 | 償却費 | 礼金 | 検討 | 平面図 | 詳細 |
|---|---|---|---|---|---|---|---|---|---|---|
| 7 | 30.50坪 |
436,150円14,300円/坪
|
317万円
|
2026年7月中旬 | なし | なし | なし |
エヌケイビルの物件情報
エヌケイビル(新宿区上落合)は下落合駅徒歩2分、中井駅徒歩9分、落合駅徒歩12分の賃貸オフィスです。
エヌケイビルのアクセス
エヌケイビルの募集終了区画
| 階数 | 面積 | 賃料+共益費 | 保証金 | 入居時期 | 更新料 | 償却費 | 礼金 | 平面図 | 詳細 |
|---|---|---|---|---|---|---|---|---|---|
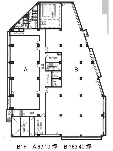
| 地下1 | 230.00坪 | − | − | 募集終了 | − | − | − | ||
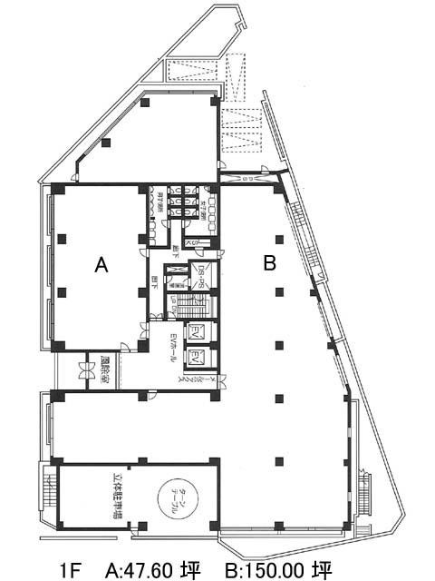
| 1 | 197.60坪 | − | − | 募集終了 | − | − | − | ||
| 1 | 47.60坪 | − | − | 募集終了 | − | − | − | ||
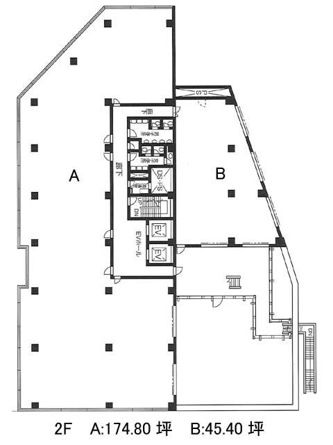
| 2 | 220.20坪 | − | − | 募集終了 | − | − | − | ||
| 3 | 93.50坪 | − | − | 募集終了 | − | − | − | ||
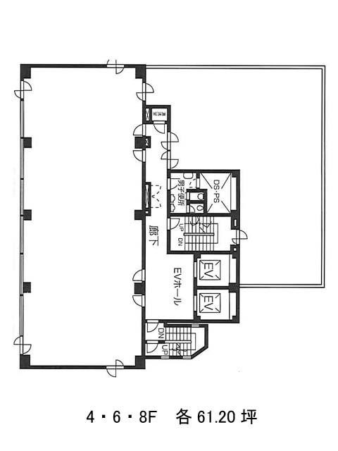
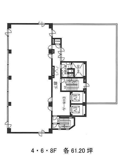
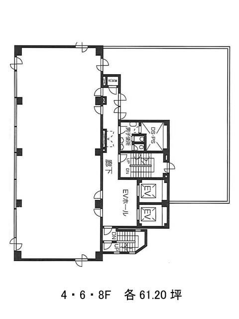
| 4 | 61.20坪 | − | − | 募集終了 | − | − | − | ||
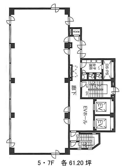
| 5 | 61.20坪 | − | − | 募集終了 | − | − | − | ||
| 6 | 61.20坪 | − | − | 募集終了 | − | − | − | ||
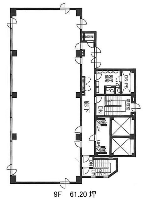
| 7 | 61.23坪 | − | − | 募集終了 | − | − | − | ||
| 8 | 61.23坪 | − | − | 募集終了 | − | − | − | ||
| 9 | 61.20坪 | − | − | 募集終了 | − | − | − |


