0120-16-2331

【受付時間】平日 AM9:00〜PM7:00

メールでお問合せ
現在、空室がございません。

片岡ビルの貸事務所・賃貸オフィス情報

片岡ビルの貸事務所・賃貸オフィス情報

片岡ビル

物件番号
258​-​00010
所在地
東京都新宿区東五軒町1-9
最寄駅
竣工
1988年4月
規模
地上5階
  • エレベーター
  • 個別空調
  • 駐車場
  • 新耐震基準

片岡ビルの空室フロアリスト

現在、空室がございません。

片岡ビルの物件情報

片岡ビル(新宿区東五軒町)は神楽坂駅徒歩5分、牛込神楽坂駅徒歩8分、飯田橋駅徒歩9分の賃貸オフィスです。

片岡ビルのアクセス

片岡ビルの募集終了区画

階数 面積 賃料+共益費 保証金 入居時期 更新料 償却費 礼金 平面図 詳細
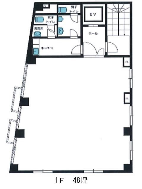
1 48.00坪 募集終了
2 47.90坪 募集終了

貸事務所・賃貸オフィスを最寄駅から探す

貸事務所・賃貸オフィスを最寄駅の沿線から探す

お問合せ このビルについて問い合わせる