ブリエ飯田橋の貸事務所・賃貸オフィス情報
ブリエ飯田橋の貸事務所・賃貸オフィス情報
ブリエ飯田橋
- エレベーター
- 個別空調
- 新耐震基準
ブリエ飯田橋の空室フロアリスト
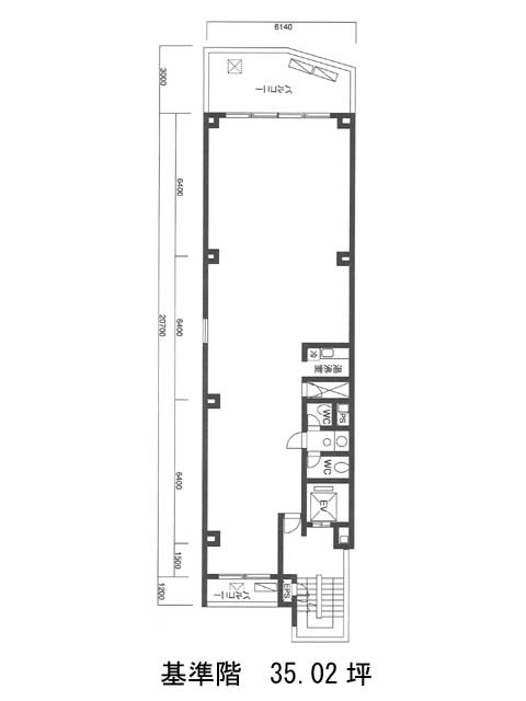
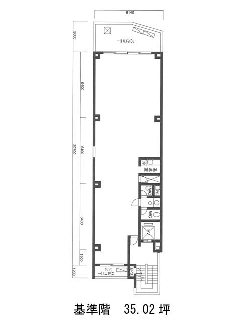
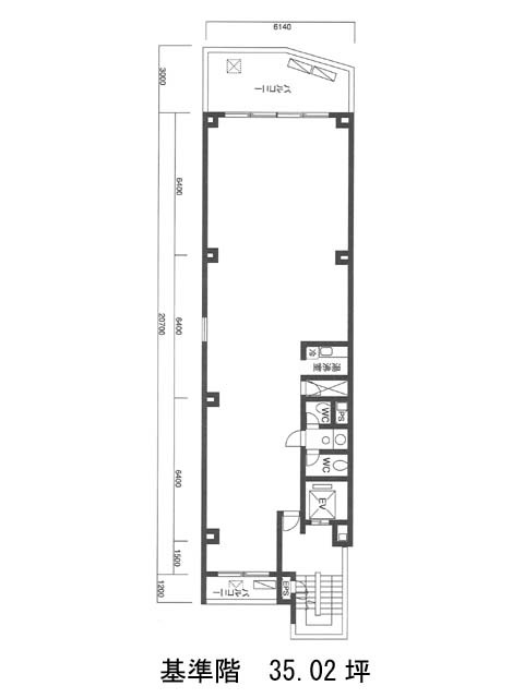
| 階数 | 面積 | 賃料+共益費 | 保証金 | 入居時期 | 更新料 | 償却費 | 礼金 | 検討 | 平面図 | 詳細 |
|---|---|---|---|---|---|---|---|---|---|---|
| 4 | 35.28坪 |
620,928円17,600円/坪
|
366万円
|
2026年2月上旬 | 新1ケ月 | 2ケ月 | なし |
ブリエ飯田橋の物件情報
ブリエ飯田橋(新宿区揚場町)は飯田橋駅徒歩1分、牛込神楽坂駅徒歩8分、神楽坂駅徒歩10分の賃貸オフィスです。
ブリエ飯田橋のアクセス
ブリエ飯田橋の募集終了区画
| 階数 | 面積 | 賃料+共益費 | 保証金 | 入居時期 | 更新料 | 償却費 | 礼金 | 平面図 | 詳細 |
|---|---|---|---|---|---|---|---|---|---|
| 1 | 38.33坪 | − | − | 募集終了 | − | − | − | ||
| 2 | 35.28坪 | − | − | 募集終了 | − | − | − | ||
| 3 | 35.28坪 | − | − | 募集終了 | − | − | − | ||
| 5 | 35.28坪 | − | − | 募集終了 | − | − | − | ||
| 6 | 27.70坪 | − | − | 募集終了 | − | − | − | ||
| 7 | 34.44坪 | − | − | 募集終了 | − | − | − |


