ACN秋葉原PLACEの貸事務所・賃貸オフィス情報
ACN秋葉原PLACEの貸事務所・賃貸オフィス情報
ACN秋葉原PLACE
- エレベーター
- 個別空調
- 新耐震基準
ACN秋葉原PLACEの空室フロアリスト
| 階数 | 面積 | 賃料+共益費 | 保証金 | 入居時期 | 更新料 | 償却費 | 礼金 | 検討 | 平面図 | 詳細 |
|---|---|---|---|---|---|---|---|---|---|---|
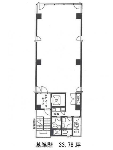
| 8 | 33.78坪 |
応相談応相談
|
応相談
|
2026年6月 | 新1ケ月 | 1ケ月 | なし |
ACN秋葉原PLACEの物件情報
ACN秋葉原PLACE(千代田区外神田)は末広町駅徒歩1分、上野広小路駅徒歩6分、湯島駅徒歩6分の賃貸オフィスです。
ACN秋葉原PLACEのアクセス
ACN秋葉原PLACEの条件に近い物件
ACN秋葉原PLACEの募集終了区画
| 階数 | 面積 | 賃料+共益費 | 保証金 | 入居時期 | 更新料 | 償却費 | 礼金 | 平面図 | 詳細 |
|---|---|---|---|---|---|---|---|---|---|
| 1-2 | 40.76坪 | − | − | 募集終了 | − | − | − | ||
| 1 | 18.70坪 | − | − | 募集終了 | − | − | − | ||
| 2 | 22.06坪 | − | − | 募集終了 | − | − | − | ||
| 3 | 33.78坪 | − | − | 募集終了 | − | − | − | ||
| 4 | 33.78坪 | − | − | 募集終了 | − | − | − | ||
| 5 | 33.78坪 | − | − | 募集終了 | − | − | − | ||
| 6 | 33.78坪 | − | − | 募集終了 | − | − | − | ||
| 7 | 33.78坪 | − | − | 募集終了 | − | − | − | ||
| 9 | 33.78坪 | − | − | 募集終了 | − | − | − |


