現在、空室がございません。
神田小林ビルの貸事務所・賃貸オフィス情報
神田小林ビルの貸事務所・賃貸オフィス情報
神田小林ビル
- エレベーター
- 新耐震基準
神田小林ビルの空室フロアリスト
現在、空室がございません。
神田小林ビルの物件情報
神田小林ビル(千代田区外神田)は末広町駅徒歩3分、湯島駅徒歩4分、上野広小路駅徒歩6分の賃貸オフィスです。
神田小林ビルのアクセス
神田小林ビルの募集終了区画
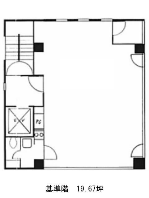
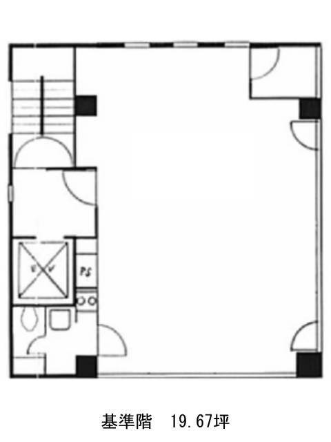
| 階数 | 面積 | 賃料+共益費 | 保証金 | 入居時期 | 更新料 | 償却費 | 礼金 | 平面図 | 詳細 |
|---|---|---|---|---|---|---|---|---|---|
| 2 | 19.67坪 | − | − | 募集終了 | − | − | − | ||
| 3 | 19.67坪 | − | − | 募集終了 | − | − | − | ||
| 4 | 19.67坪 | − | − | 募集終了 | − | − | − |


