0120-16-2331

【受付時間】平日 AM9:00〜PM7:00

メールでお問合せ

福栄秋葉原ビルの貸事務所・賃貸オフィス情報

福栄秋葉原ビルの貸事務所・賃貸オフィス情報

福栄秋葉原ビル

物件番号
381​-​00223
所在地
東京都千代田区外神田3-14-3
最寄駅
湯島駅 9分
神田駅 10分
竣工
1994年1月
規模
地上8階
  • エレベーター
  • 個別空調
  • 新耐震基準

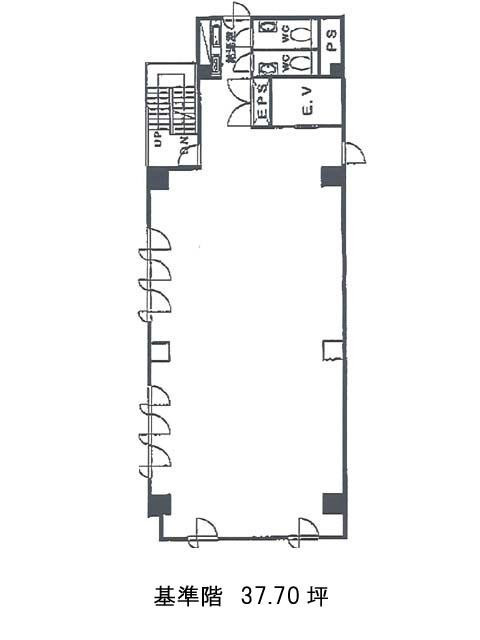
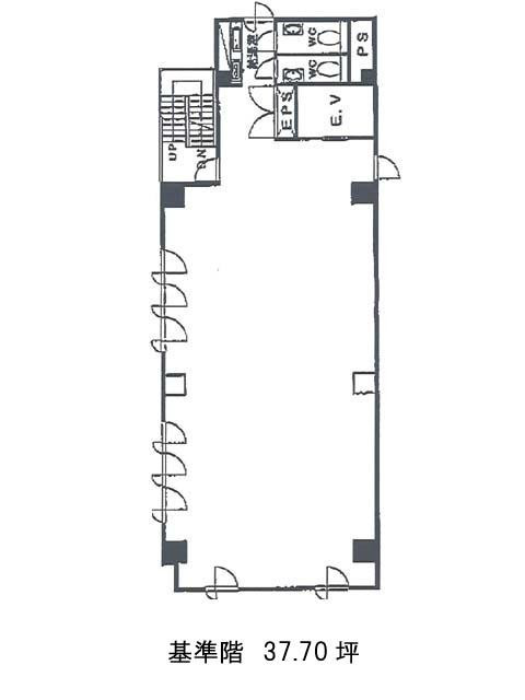
福栄秋葉原ビルの空室フロアリスト

階数 面積 賃料+共益費 保証金 入居時期 更新料 償却費 礼金 検討 平面図 詳細
2 37.70坪
応相談応相談
応相談
2026年9月上旬 新1ケ月 10% なし

福栄秋葉原ビルの物件情報

福栄秋葉原ビル(千代田区外神田)は末広町駅徒歩3分、秋葉原駅徒歩6分、湯島駅徒歩9分の賃貸オフィスです。

福栄秋葉原ビルのアクセス

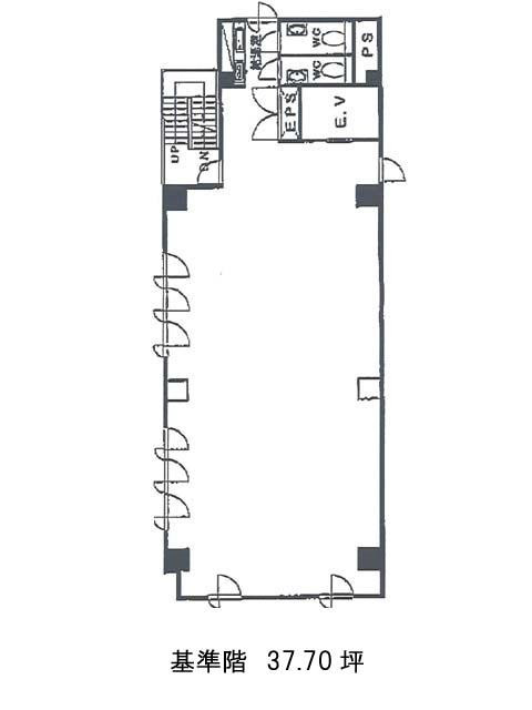
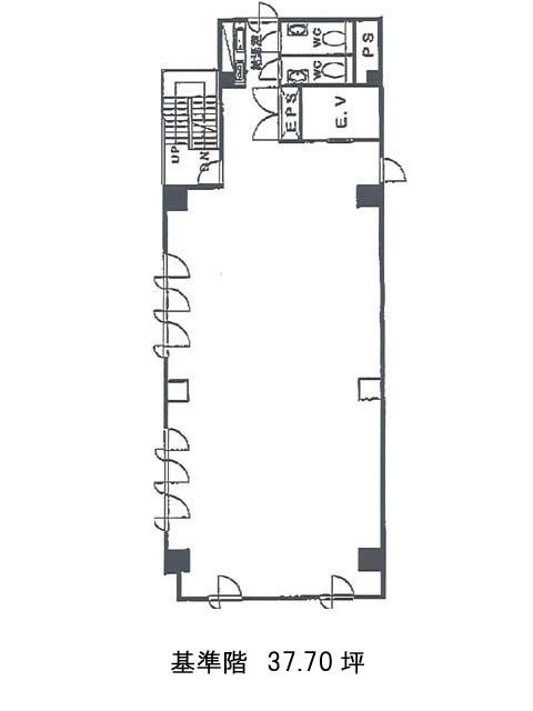
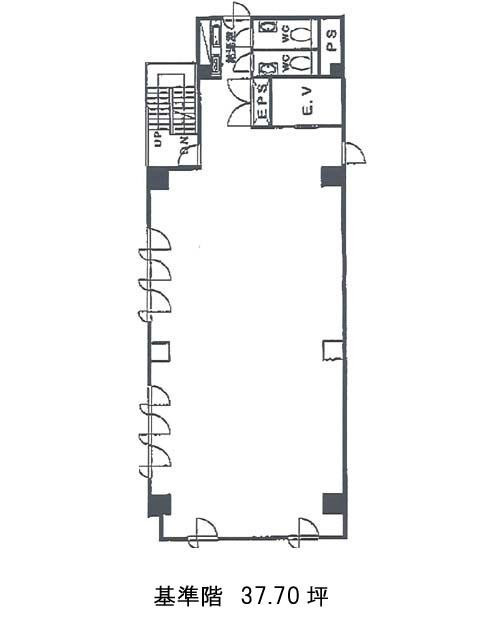
福栄秋葉原ビルの募集終了区画

階数 面積 賃料+共益費 保証金 入居時期 更新料 償却費 礼金 平面図 詳細
3 37.70坪 募集終了
4 37.70坪 募集終了
5 37.70坪 募集終了
6 37.70坪 募集終了
7 37.70坪 募集終了
8 37.70坪 募集終了

貸事務所・賃貸オフィスを最寄駅から探す

貸事務所・賃貸オフィスを最寄駅の沿線から探す

お問合せ このビルについて問い合わせる