紅谷ビルの貸事務所・賃貸オフィス情報
紅谷ビルの貸事務所・賃貸オフィス情報
紅谷ビル
- 物件番号
- 388-00010
- 所在地
- 東京都千代田区麹町4-3-16
- 竣工
- 1992年5月
- 規模
- 地上10階/地下2階
- エレベーター
- セントラル
- 新耐震基準
紅谷ビルの空室フロアリスト
| 階数 | 面積 | 賃料+共益費 | 保証金 | 入居時期 | 更新料 | 償却費 | 礼金 | 検討 | 平面図 | 詳細 |
|---|---|---|---|---|---|---|---|---|---|---|
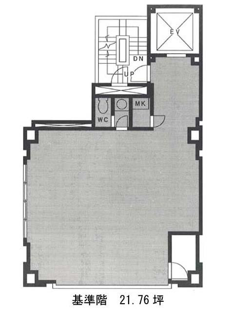
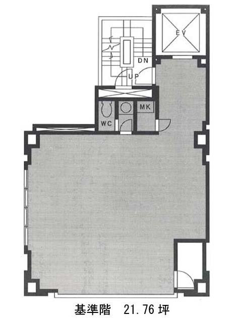
| 9 | 21.76坪 |
478,720円22,000円/坪
|
369万円
|
即 | 新1ケ月 | 10% | 1ケ月 |
紅谷ビルの物件情報
紅谷ビル(千代田区麹町)は麹町駅徒歩2分、半蔵門駅徒歩5分、永田町駅徒歩6分の賃貸オフィスです。
紅谷ビルのアクセス
紅谷ビルの条件に近い物件
紅谷ビルの募集終了区画
| 階数 | 面積 | 賃料+共益費 | 保証金 | 入居時期 | 更新料 | 償却費 | 礼金 | 平面図 | 詳細 |
|---|---|---|---|---|---|---|---|---|---|
| 地下1 | 20.16坪 | − | − | 募集終了 | − | − | − | ||
| 1 | 15.65坪 | − | − | 募集終了 | − | − | − | ||
| 2 | 21.76坪 | − | − | 募集終了 | − | − | − | ||
| 4 | 21.76坪 | − | − | 募集終了 | − | − | − | ||
| 5 | 21.76坪 | − | − | 募集終了 | − | − | − | ||
| 6 | 21.76坪 | − | − | 募集終了 | − | − | − | ||
| 7 | 21.76坪 | − | − | 募集終了 | − | − | − | ||
| 8 | 21.76坪 | − | − | 募集終了 | − | − | − |


