0120-16-2331

【受付時間】平日 AM9:00〜PM7:00

メールでお問合せ
現在、空室がございません。

麹町山口ビルの貸事務所・賃貸オフィス情報

麹町山口ビルの貸事務所・賃貸オフィス情報

麹町山口ビル

物件番号
388​-​00019
所在地
東京都千代田区麹町3-7-8
最寄駅
麹町駅 4分
四ツ谷駅 13分
竣工
1993年3月
規模
地上6階/地下1階
  • エレベーター
  • 個別空調
  • 新耐震基準

麹町山口ビルの空室フロアリスト

現在、空室がございません。

麹町山口ビルの物件情報

麹町山口ビル(千代田区麹町)は半蔵門駅徒歩2分、麹町駅徒歩4分、永田町駅徒歩9分の賃貸オフィスです。

麹町山口ビルのアクセス

麹町山口ビルの募集終了区画

階数 面積 賃料+共益費 保証金 入居時期 更新料 償却費 礼金 平面図 詳細
2 42.39坪 募集終了
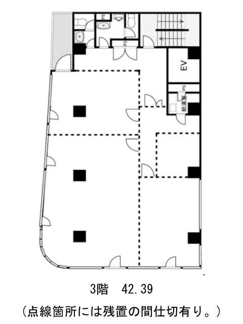
3 42.39坪 募集終了
4 42.39坪 募集終了
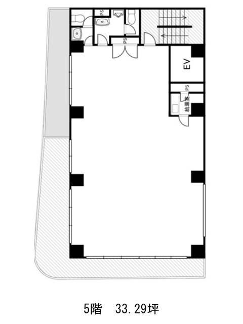
5 33.29坪 募集終了

貸事務所・賃貸オフィスを最寄駅から探す

貸事務所・賃貸オフィスを最寄駅の沿線から探す

お問合せ このビルについて問い合わせる