現在、空室がございません。
owns平河町の貸事務所・賃貸オフィス情報
owns平河町の貸事務所・賃貸オフィス情報
owns平河町
- エレベーター
- 個別空調
- 新耐震基準
owns平河町の空室フロアリスト
現在、空室がございません。
owns平河町の物件情報
owns平河町(千代田区平河町)は麹町駅徒歩3分、永田町駅徒歩4分、半蔵門駅徒歩6分の賃貸オフィスです。
owns平河町のアクセス
owns平河町の条件に近い物件
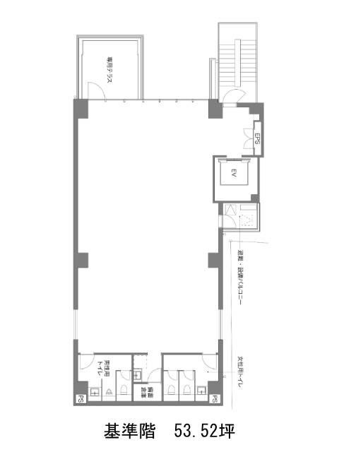
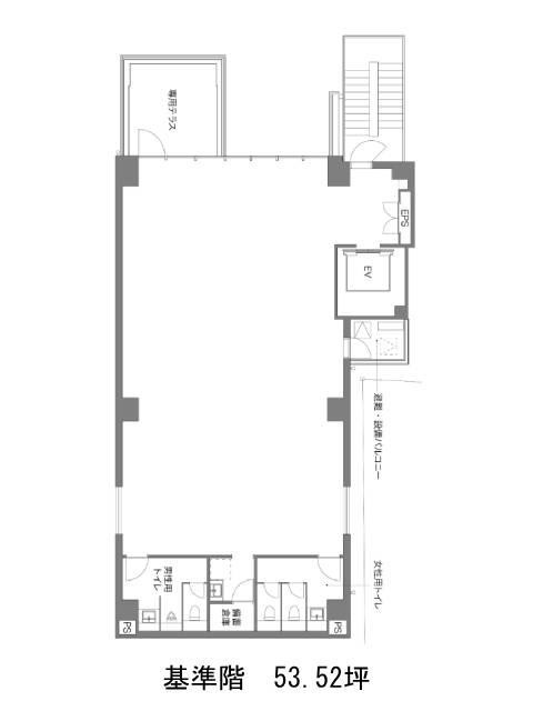
owns平河町の募集終了区画
| 階数 | 面積 | 賃料+共益費 | 保証金 | 入居時期 | 更新料 | 償却費 | 礼金 | 平面図 | 詳細 |
|---|---|---|---|---|---|---|---|---|---|
| 1 | 43.70坪 | − | − | 募集終了 | − | − | − | ||
| 3 | 53.52坪 | − | − | 募集終了 | − | − | − | ||
| 4 | 53.52坪 | − | − | 募集終了 | − | − | − | ||
| 5 | 53.52坪 | − | − | 募集終了 | − | − | − | ||
| 6 | 53.52坪 | − | − | 募集終了 | − | − | − | ||
| 7 | 53.52坪 | − | − | 募集終了 | − | − | − | ||
| 8 | 53.52坪 | − | − | 募集終了 | − | − | − | ||
| 9 | 53.52坪 | − | − | 募集終了 | − | − | − | ||
| 10 | 53.52坪 | − | − | 募集終了 | − | − | − | ||
| 11 | 53.52坪 | − | − | 募集終了 | − | − | − |


