現在、空室がございません。
小谷ビル(KTNビル)の貸事務所・賃貸オフィス情報
小谷ビル(KTNビル)の貸事務所・賃貸オフィス情報
小谷ビル(KTNビル)
- 物件番号
- 431-00014
- 所在地
- 東京都千代田区有楽町1-6-6
- 竣工
- 1963年2月
- 規模
- 地上9階/地下2階
- エレベーター
- 個別空調
- 旧耐震基準
小谷ビル(KTNビル)の空室フロアリスト
現在、空室がございません。
小谷ビル(KTNビル)の物件情報
小谷ビル(KTNビル)(千代田区有楽町)は日比谷駅徒歩1分、銀座駅徒歩2分、有楽町駅徒歩3分の賃貸オフィスです。
小谷ビル(KTNビル)のアクセス
小谷ビル(KTNビル)の募集終了区画
| 階数 | 面積 | 賃料+共益費 | 保証金 | 入居時期 | 更新料 | 償却費 | 礼金 | 平面図 | 詳細 |
|---|---|---|---|---|---|---|---|---|---|
| 25.00坪 | − | − | 募集終了 | − | − | − | |||
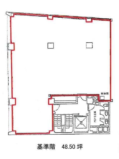
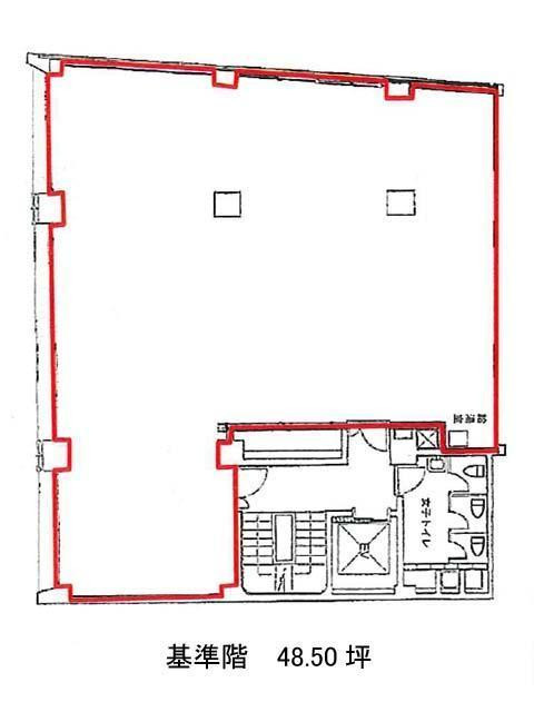
| 2 | 48.50坪 | − | − | 募集終了 | − | − | − | ||
| 3 | 48.50坪 | − | − | 募集終了 | − | − | − | ||
| 5 | 48.50坪 | − | − | 募集終了 | − | − | − | ||
| 6 | 48.50坪 | − | − | 募集終了 | − | − | − | ||
| 7 | 24.50坪 | − | − | 募集終了 | − | − | − | ||
| 7 | 24.00坪 | − | − | 募集終了 | − | − | − | ||
| 7 | 24.50坪 | − | − | 募集終了 | − | − | − | ||
| 7 | 24.00坪 | − | − | 募集終了 | − | − | − | ||
| 8 | 25.00坪 | − | − | 募集終了 | − | − | − | ||
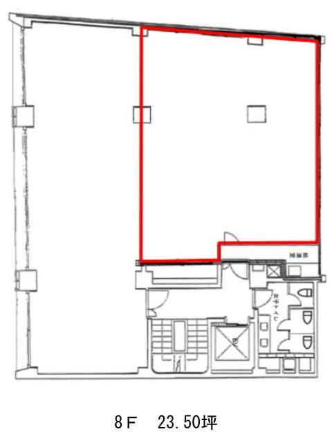
| 8 | 23.50坪 | − | − | 募集終了 | − | − | − | ||
| 8 | 23.50坪 | − | − | 募集終了 | − | − | − | ||
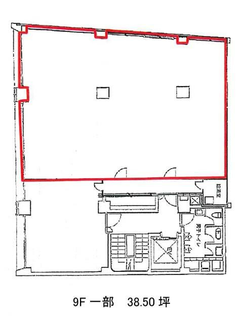
| 9 | 38.50坪 | − | − | 募集終了 | − | − | − |


