御徒町フェニックスビルの貸事務所・賃貸オフィス情報
御徒町フェニックスビルの貸事務所・賃貸オフィス情報
御徒町フェニックスビル
- 物件番号
- 552-00503
- 所在地
- 東京都台東区上野5-6-10
- 竣工
- 2015年2月
- 規模
- 地上10階
- エレベーター
- 新耐震基準
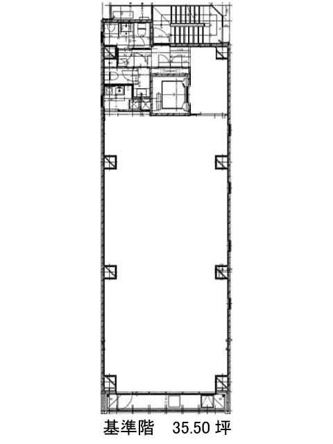
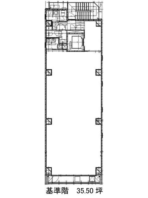
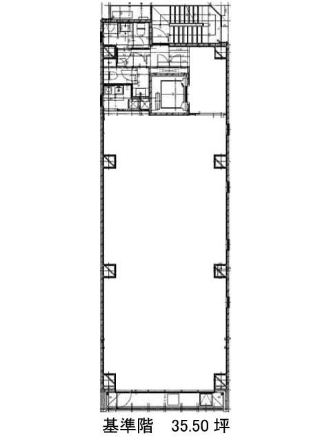
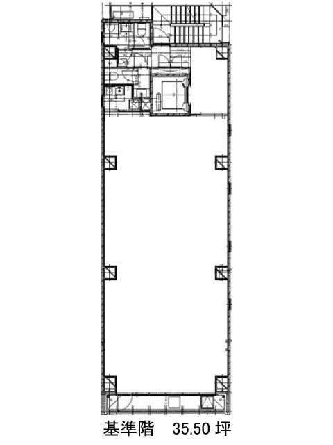
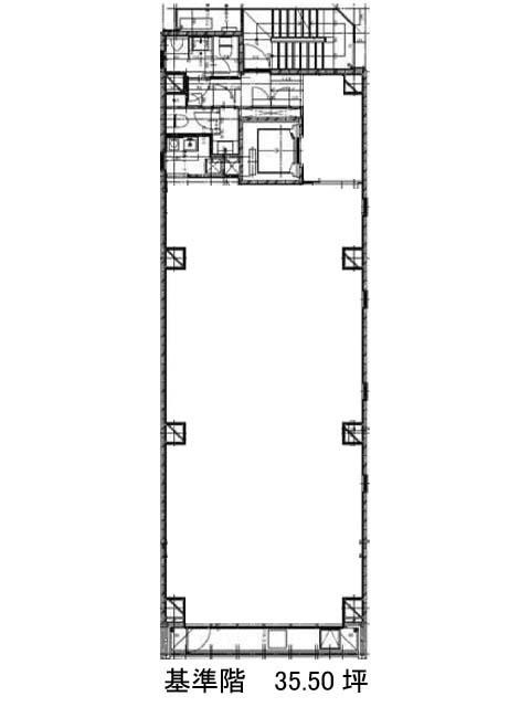
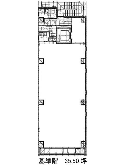
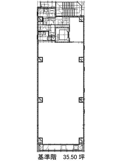
御徒町フェニックスビルの空室フロアリスト
| 階数 | 面積 | 賃料+共益費 | 保証金 | 入居時期 | 更新料 | 償却費 | 礼金 | 検討 | 平面図 | 詳細 |
|---|---|---|---|---|---|---|---|---|---|---|
| 2 | 35.50坪 |
781,000円22,000円/坪
|
568万円
|
即 | 新1ケ月 | なし | なし | |||
| 9 | 35.50坪 |
781,000円22,000円/坪
|
568万円
|
即 | 新1ケ月 | なし | なし |
御徒町フェニックスビルの物件情報
御徒町フェニックスビル(台東区上野)は仲御徒町駅徒歩3分、御徒町駅徒歩6分、上野御徒町駅徒歩6分の賃貸オフィスです。
御徒町フェニックスビルのアクセス
御徒町フェニックスビルの募集終了区画
| 階数 | 面積 | 賃料+共益費 | 保証金 | 入居時期 | 更新料 | 償却費 | 礼金 | 平面図 | 詳細 |
|---|---|---|---|---|---|---|---|---|---|
| 3 | 35.50坪 | − | − | 募集終了 | − | − | − | ||
| 4 | 35.50坪 | − | − | 募集終了 | − | − | − | ||
| 5 | 35.50坪 | − | − | 募集終了 | − | − | − | ||
| 6 | 35.50坪 | − | − | 募集終了 | − | − | − | ||
| 7 | 35.50坪 | − | − | 募集終了 | − | − | − | ||
| 8 | 35.50坪 | − | − | 募集終了 | − | − | − | ||
| 10 | 34.50坪 | − | − | 募集終了 | − | − | − |


