現在、空室がございません。
鹿嶋ビルの貸事務所・賃貸オフィス情報
鹿嶋ビルの貸事務所・賃貸オフィス情報
鹿嶋ビル
- エレベーター
- 個別空調
- 新耐震基準
鹿嶋ビルの空室フロアリスト
現在、空室がございません。
鹿嶋ビルの物件情報
鹿嶋ビル(台東区上野)は末広町駅徒歩3分、仲御徒町駅徒歩6分、御徒町駅徒歩6分の賃貸オフィスです。
鹿嶋ビルのアクセス
鹿嶋ビルの募集終了区画
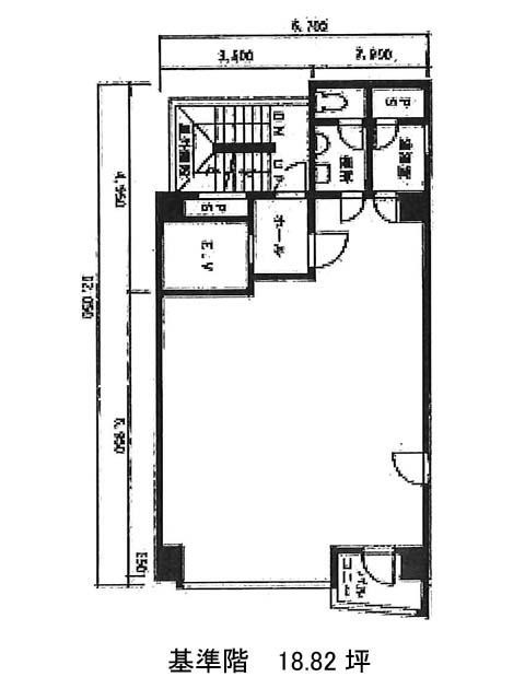
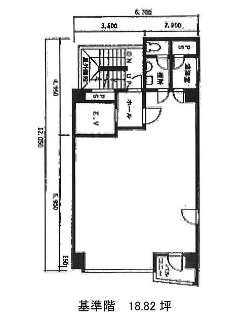
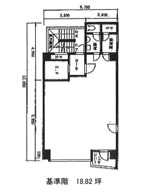
| 階数 | 面積 | 賃料+共益費 | 保証金 | 入居時期 | 更新料 | 償却費 | 礼金 | 平面図 | 詳細 |
|---|---|---|---|---|---|---|---|---|---|
| 2 | 18.82坪 | − | − | 募集終了 | − | − | − | ||
| 3 | 18.82坪 | − | − | 募集終了 | − | − | − | ||
| 4 | 18.82坪 | − | − | 募集終了 | − | − | − |


