浅草SP ビルの貸事務所・賃貸オフィス情報
浅草SP ビルの貸事務所・賃貸オフィス情報
浅草SP ビル
- エレベーター
- 個別空調
- 新耐震基準
浅草SP ビルの空室フロアリスト
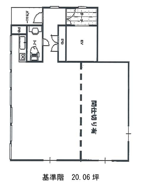
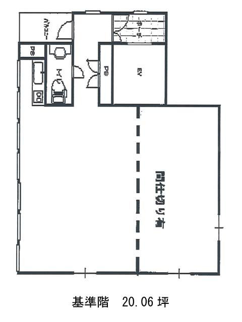
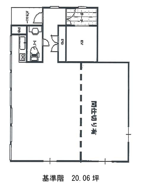
| 階数 | 面積 | 賃料+共益費 | 保証金 | 入居時期 | 更新料 | 償却費 | 礼金 | 検討 | 平面図 | 詳細 |
|---|---|---|---|---|---|---|---|---|---|---|
| 5 | 20.06坪 |
330,148円16,458円/坪
|
180万円
|
即 | 新1ケ月 | 2ケ月 | 2ケ月 |
浅草SP ビルの物件情報
浅草SP ビル(台東区西浅草)は浅草駅徒歩5分、田原町駅徒歩8分、稲荷町駅徒歩12分の賃貸オフィスです。
浅草SP ビルのアクセス
浅草SP ビルの条件に近い物件
浅草SP ビルの募集終了区画
| 階数 | 面積 | 賃料+共益費 | 保証金 | 入居時期 | 更新料 | 償却費 | 礼金 | 平面図 | 詳細 |
|---|---|---|---|---|---|---|---|---|---|
| 1 | 24.85坪 | − | − | 募集終了 | − | − | − | ||
| 3 | 20.06坪 | − | − | 募集終了 | − | − | − | ||
| 4 | 20.06坪 | − | − | 募集終了 | − | − | − | ||
| 6 | 20.06坪 | − | − | 募集終了 | − | − | − |


