秋葉原アイマークビルの貸事務所・賃貸オフィス情報
秋葉原アイマークビルの貸事務所・賃貸オフィス情報
秋葉原アイマークビル
- エレベーター
- 駐車場
- 新耐震基準
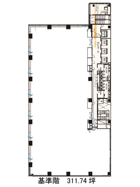
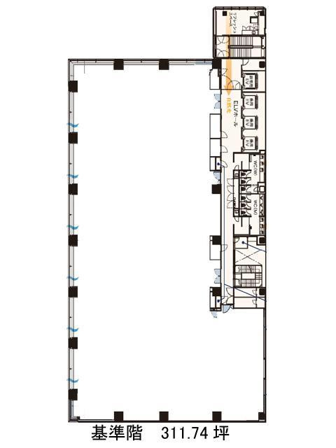
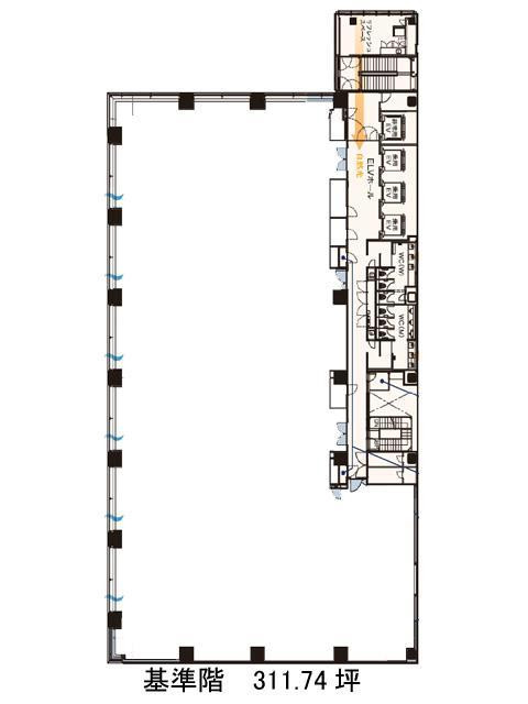
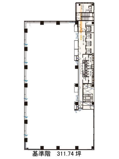
秋葉原アイマークビルの空室フロアリスト
| 階数 | 面積 | 賃料+共益費 | 保証金 | 入居時期 | 更新料 | 償却費 | 礼金 | 検討 | 平面図 | 詳細 |
|---|---|---|---|---|---|---|---|---|---|---|
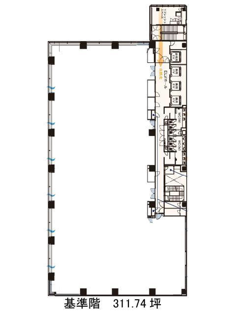
| 5 | 311.74坪 |
応相談応相談
|
応相談
|
2026年4月上旬 | なし | なし | なし | |||
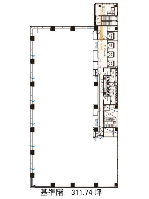
| 11 | 311.85坪 |
応相談応相談
|
応相談
|
2026年2月下旬 | なし | なし | なし |
秋葉原アイマークビルの物件情報
秋葉原アイマークビル(台東区台東)は仲御徒町駅徒歩5分、末広町駅徒歩6分、秋葉原駅徒歩7分の賃貸オフィスです。
秋葉原アイマークビルのアクセス
秋葉原アイマークビルの募集終了区画
| 階数 | 面積 | 賃料+共益費 | 保証金 | 入居時期 | 更新料 | 償却費 | 礼金 | 平面図 | 詳細 |
|---|---|---|---|---|---|---|---|---|---|
| 1 | 64.60坪 | − | − | 募集終了 | − | − | − | ||
| 1 | 92.14坪 | − | − | 募集終了 | − | − | − | ||
| 2 | 311.74坪 | − | − | 募集終了 | − | − | − | ||
| 3 | 311.74坪 | − | − | 募集終了 | − | − | − | ||
| 4 | 311.74坪 | − | − | 募集終了 | − | − | − | ||
| 6 | 311.74坪 | − | − | 募集終了 | − | − | − | ||
| 7 | 311.74坪 | − | − | 募集終了 | − | − | − | ||
| 8 | 311.72坪 | − | − | 募集終了 | − | − | − | ||
| 9 | 311.85坪 | − | − | 募集終了 | − | − | − | ||
| 10 | 311.74坪 | − | − | 募集終了 | − | − | − | ||
| 12 | 311.74坪 | − | − | 募集終了 | − | − | − |


