現在、空室がございません。
林ビルの貸事務所・賃貸オフィス情報
林ビルの貸事務所・賃貸オフィス情報
林ビル
- エレベーター
- 駐車場
- 旧耐震基準
林ビルの空室フロアリスト
現在、空室がございません。
林ビルの物件情報
林ビル(台東区東上野)は稲荷町駅徒歩4分、上野駅徒歩9分、新御徒町駅徒歩10分の賃貸オフィスです。
林ビルのアクセス
林ビルの募集終了区画
| 階数 | 面積 | 賃料+共益費 | 保証金 | 入居時期 | 更新料 | 償却費 | 礼金 | 平面図 | 詳細 |
|---|---|---|---|---|---|---|---|---|---|
| 2 | 34.68坪 | − | − | 募集終了 | − | − | − | ||
| 3 | 30.10坪 | − | − | 募集終了 | − | − | − | ||
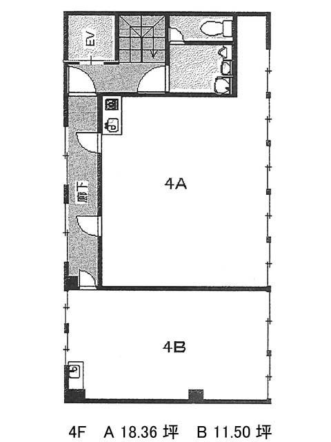
| 4 | 18.36坪 | − | − | 募集終了 | − | − | − |


