ヒロハイツオカモトの貸事務所・賃貸オフィス情報
ヒロハイツオカモトの貸事務所・賃貸オフィス情報
ヒロハイツオカモト
- エレベーター
- 新耐震基準
ヒロハイツオカモトの空室フロアリスト
| 階数 | 面積 | 賃料+共益費 | 保証金 | 入居時期 | 更新料 | 償却費 | 礼金 | 検討 | 平面図 | 詳細 |
|---|---|---|---|---|---|---|---|---|---|---|
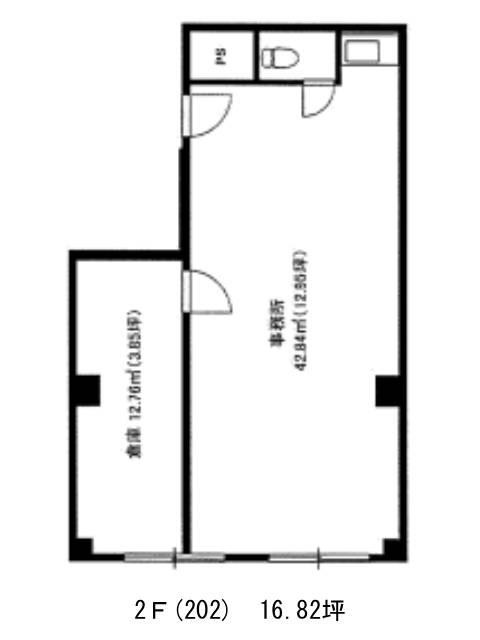
| 2 | 16.82坪 |
187,000円11,118円/坪
|
49万円
|
2026年4月下旬 | 新1ケ月 | 1ケ月 | 1ケ月 |
ヒロハイツオカモトの物件情報
ヒロハイツオカモト(台東区東上野)は稲荷町駅徒歩9分、入谷駅徒歩9分、浅草駅徒歩9分の賃貸オフィスです。
ヒロハイツオカモトのアクセス
ヒロハイツオカモトの募集終了区画
| 階数 | 面積 | 賃料+共益費 | 保証金 | 入居時期 | 更新料 | 償却費 | 礼金 | 平面図 | 詳細 |
|---|---|---|---|---|---|---|---|---|---|
| 1 | 24.48坪 | − | − | 募集終了 | − | − | − | ||
| 2 | 17.84坪 | − | − | 募集終了 | − | − | − |


