システム上野ビルの貸事務所・賃貸オフィス情報
システム上野ビルの貸事務所・賃貸オフィス情報
システム上野ビル
- エレベーター
- 新耐震基準
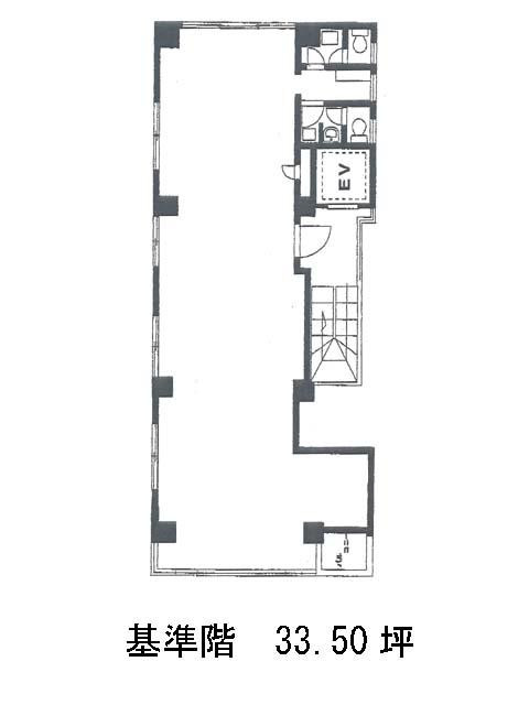
システム上野ビルの空室フロアリスト
| 階数 | 面積 | 賃料+共益費 | 保証金 | 入居時期 | 更新料 | 償却費 | 礼金 | 検討 | 平面図 | 詳細 |
|---|---|---|---|---|---|---|---|---|---|---|
| 3 | 33.50坪 |
442,200円13,200円/坪
|
241万円
|
相談 | 新1ケ月 | 2ケ月 | なし |
システム上野ビルの物件情報
システム上野ビル(台東区東上野)は上野駅徒歩4分、上野御徒町駅徒歩6分、仲御徒町駅徒歩7分の賃貸オフィスです。
システム上野ビルのアクセス
システム上野ビルの募集終了区画
| 階数 | 面積 | 賃料+共益費 | 保証金 | 入居時期 | 更新料 | 償却費 | 礼金 | 平面図 | 詳細 |
|---|---|---|---|---|---|---|---|---|---|
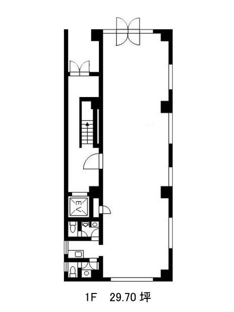
| 1 | 29.70坪 | − | − | 募集終了 | − | − | − | ||
| 2 | 33.50坪 | − | − | 募集終了 | − | − | − | ||
| 4 | 33.50坪 | − | − | 募集終了 | − | − | − | ||
| 5 | 33.50坪 | − | − | 募集終了 | − | − | − |


