現在、空室がございません。
アイサンビルの貸事務所・賃貸オフィス情報
アイサンビルの貸事務所・賃貸オフィス情報
アイサンビル
- エレベーター
- 新耐震基準
アイサンビルの空室フロアリスト
現在、空室がございません。
アイサンビルの物件情報
アイサンビル(台東区東上野)は上野駅徒歩4分、上野御徒町駅徒歩5分、仲御徒町駅徒歩5分の賃貸オフィスです。
アイサンビルのアクセス
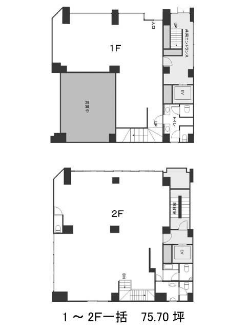
アイサンビルの募集終了区画
| 階数 | 面積 | 賃料+共益費 | 保証金 | 入居時期 | 更新料 | 償却費 | 礼金 | 平面図 | 詳細 |
|---|---|---|---|---|---|---|---|---|---|
| 1 | 75.70坪 | − | − | 募集終了 | − | − | − |


