新下谷ビルの貸事務所・賃貸オフィス情報
新下谷ビルの貸事務所・賃貸オフィス情報
新下谷ビル
- エレベーター
- 個別空調
- 旧耐震基準
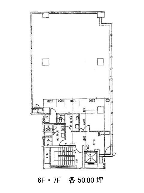
新下谷ビルの空室フロアリスト
| 階数 | 面積 | 賃料+共益費 | 保証金 | 入居時期 | 更新料 | 償却費 | 礼金 | 検討 | 平面図 | 詳細 |
|---|---|---|---|---|---|---|---|---|---|---|
| 7 | 50.80坪 |
810,260円15,950円/坪
|
584万円
|
即 | なし | なし | なし |
新下谷ビルの物件情報
新下谷ビル(台東区東上野)は稲荷町駅徒歩2分、上野駅徒歩6分、新御徒町駅徒歩8分の賃貸オフィスです。
新下谷ビルのアクセス
新下谷ビルの募集終了区画
| 階数 | 面積 | 賃料+共益費 | 保証金 | 入居時期 | 更新料 | 償却費 | 礼金 | 平面図 | 詳細 |
|---|---|---|---|---|---|---|---|---|---|
| 6 | 50.80坪 | − | − | 募集終了 | − | − | − |


