浅草ビルの貸事務所・賃貸オフィス情報
浅草ビルの貸事務所・賃貸オフィス情報
浅草ビル
- エレベーター
- 個別空調
- 駐車場
- 新耐震基準
浅草ビルの空室フロアリスト
| 階数 | 面積 | 賃料+共益費 | 保証金 | 入居時期 | 更新料 | 償却費 | 礼金 | 検討 | 平面図 | 詳細 |
|---|---|---|---|---|---|---|---|---|---|---|
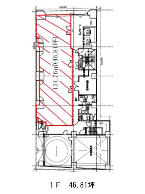
| 1 | 46.81坪 |
応相談応相談
|
応相談
|
2026年9月上旬 | なし | なし | なし |
浅草ビルの物件情報
浅草ビル(台東区雷門)は浅草駅徒歩2分、田原町駅徒歩6分、蔵前駅徒歩9分の賃貸オフィスです。
浅草ビルのアクセス
浅草ビルの条件に近い物件
浅草ビルの募集終了区画
| 階数 | 面積 | 賃料+共益費 | 保証金 | 入居時期 | 更新料 | 償却費 | 礼金 | 平面図 | 詳細 |
|---|---|---|---|---|---|---|---|---|---|
| 2 | 23.00坪 | − | − | 募集終了 | − | − | − | ||
| 2 | 32.62坪 | − | − | 募集終了 | − | − | − | ||
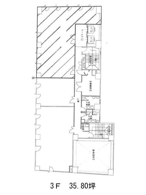
| 3 | 35.80坪 | − | − | 募集終了 | − | − | − | ||
| 7 | 26.60坪 | − | − | 募集終了 | − | − | − | ||
| 8 | 76.02坪 | − | − | 募集終了 | − | − | − | ||
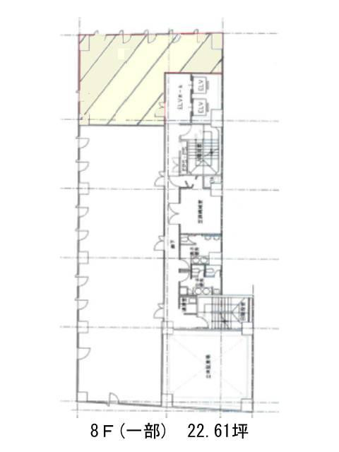
| 8 | 22.61坪 | − | − | 募集終了 | − | − | − |


