羽田イノベーションシティ zoneBの貸事務所・賃貸オフィス情報
羽田イノベーションシティ zoneBの貸事務所・賃貸オフィス情報
羽田イノベーションシティ zoneB
- エレベーター
- 個別空調
- 駐車場
- 新耐震基準
羽田イノベーションシティ zoneBの空室フロアリスト
| 階数 | 面積 | 賃料+共益費 | 保証金 | 入居時期 | 更新料 | 償却費 | 礼金 | 検討 | 平面図 | 詳細 |
|---|---|---|---|---|---|---|---|---|---|---|
| 3 | 185.98坪 |
応相談応相談
|
応相談
|
即 | なし | なし | なし | |||
| 3 | 254.68坪 |
応相談応相談
|
応相談
|
即 | なし | なし | なし | |||
| 3 | 186.42坪 |
応相談応相談
|
応相談
|
即 | なし | なし | なし | |||
| 4 | 822.94坪 |
応相談応相談
|
応相談
|
即 | なし | なし | なし | |||
| 6 | 636.52坪 |
応相談応相談
|
応相談
|
即 | なし | なし | なし | |||
| 6 | 186.42坪 |
応相談応相談
|
応相談
|
即 | なし | なし | なし |
羽田イノベーションシティ zoneBの物件情報
羽田イノベーションシティ zoneB(大田区羽田)は天空橋駅徒歩3分、整備場駅徒歩15分の賃貸オフィスです。
羽田イノベーションシティ zoneBのアクセス
羽田イノベーションシティ zoneBの募集終了区画
| 階数 | 面積 | 賃料+共益費 | 保証金 | 入居時期 | 更新料 | 償却費 | 礼金 | 平面図 | 詳細 |
|---|---|---|---|---|---|---|---|---|---|
| 1 | 399.78坪 | − | − | 募集終了 | − | − | − | ||
| 2 | 953.16坪 | − | − | 募集終了 | − | − | − | ||
| 3 | 1729.90坪 | − | − | 募集終了 | − | − | − | ||
| 3 | 1122.34坪 | − | − | 募集終了 | − | − | − | ||
| 3 | 858.88坪 | − | − | 募集終了 | − | − | − | ||
| 3 | 478.82坪 | − | − | 募集終了 | − | − | − | ||
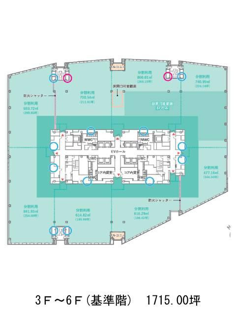
| 4 | 1715.00坪 | − | − | 募集終了 | − | − | − | ||
| 4 | 1277.74坪 | − | − | 募集終了 | − | − | − | ||
| 4 | 1702.80坪 | − | − | 募集終了 | − | − | − | ||
| 5 | 1715.00坪 | − | − | 募集終了 | − | − | − | ||
| 5 | 1738.50坪 | − | − | 募集終了 | − | − | − | ||
| 6 | 1715.00坪 | − | − | 募集終了 | − | − | − | ||
| 6 | 1738.50坪 | − | − | 募集終了 | − | − | − | ||
| 6 | 826.12坪 | − | − | 募集終了 | − | − | − |


