現在、空室がございません。
日土地京橋ビルの貸事務所・賃貸オフィス情報
日土地京橋ビルの貸事務所・賃貸オフィス情報
日土地京橋ビル
- エレベーター
- 個別空調
- 駐車場
- 新耐震基準
日土地京橋ビルの空室フロアリスト
現在、空室がございません。
日土地京橋ビルの物件情報
日土地京橋ビル(中央区京橋)は宝町駅徒歩1分、京橋駅徒歩2分、銀座一丁目駅徒歩7分の賃貸オフィスです。
日土地京橋ビルのアクセス
日土地京橋ビルの募集終了区画
| 階数 | 面積 | 賃料+共益費 | 保証金 | 入居時期 | 更新料 | 償却費 | 礼金 | 平面図 | 詳細 |
|---|---|---|---|---|---|---|---|---|---|
| 地下1 | 99.47坪 | − | − | 募集終了 | − | − | − | ||
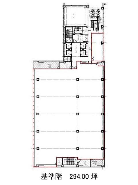
| 7 | 294.00坪 | − | − | 募集終了 | − | − | − | ||
| 8 | 294.75坪 | − | − | 募集終了 | − | − | − |


