上一ビルディングの貸事務所・賃貸オフィス情報
上一ビルディングの貸事務所・賃貸オフィス情報
上一ビルディング
- エレベーター
- 個別空調
- 新耐震基準
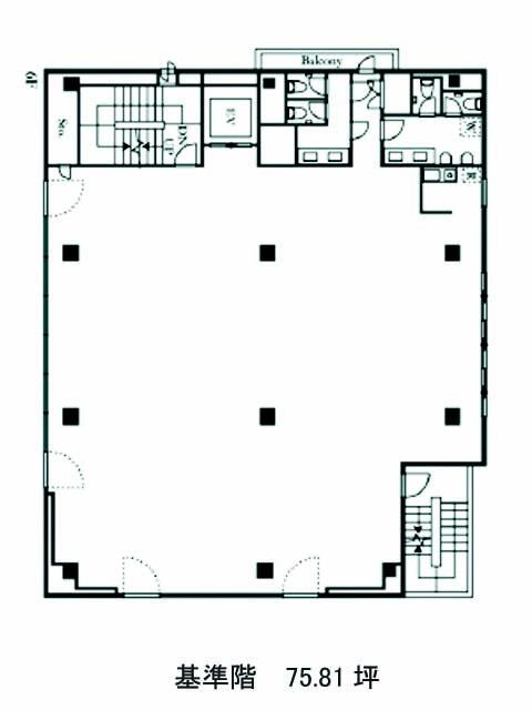
上一ビルディングの空室フロアリスト
| 階数 | 面積 | 賃料+共益費 | 保証金 | 入居時期 | 更新料 | 償却費 | 礼金 | 検討 | 平面図 | 詳細 |
|---|---|---|---|---|---|---|---|---|---|---|
| 4 | 75.81坪 |
1,667,820円22,000円/坪
|
1516万円
|
即 | なし | なし | なし |
上一ビルディングの物件情報
上一ビルディング(中央区銀座)は銀座一丁目駅徒歩1分、京橋駅徒歩4分、有楽町駅徒歩4分の賃貸オフィスです。
上一ビルディングのアクセス
上一ビルディングの条件に近い物件
上一ビルディングの募集終了区画
| 階数 | 面積 | 賃料+共益費 | 保証金 | 入居時期 | 更新料 | 償却費 | 礼金 | 平面図 | 詳細 |
|---|---|---|---|---|---|---|---|---|---|
| 5 | 75.81坪 | − | − | 募集終了 | − | − | − | ||
| 6 | 75.81坪 | − | − | 募集終了 | − | − | − | ||
| 7 | 75.81坪 | − | − | 募集終了 | − | − | − |


