0120-16-2331

【受付時間】平日 AM9:00〜PM7:00

メールでお問合せ
現在、空室がございません。

銀座シルクビルの貸事務所・賃貸オフィス情報

銀座シルクビルの貸事務所・賃貸オフィス情報

銀座シルクビル

物件番号
634​-​00143
所在地
東京都中央区銀座4-6-17
最寄駅
銀座駅 1分
竣工
1981年7月
規模
地上9階/地下1階
  • エレベーター
  • 個別空調
  • 旧耐震基準

銀座シルクビルの空室フロアリスト

現在、空室がございません。

銀座シルクビルの物件情報

銀座シルクビル(中央区銀座)は銀座駅徒歩1分、銀座一丁目駅徒歩4分、東銀座駅徒歩4分の賃貸オフィスです。

銀座シルクビルのアクセス

銀座シルクビルの募集終了区画

階数 面積 賃料+共益費 保証金 入居時期 更新料 償却費 礼金 平面図 詳細
地下1 26.50坪 募集終了
3 28.53坪 募集終了
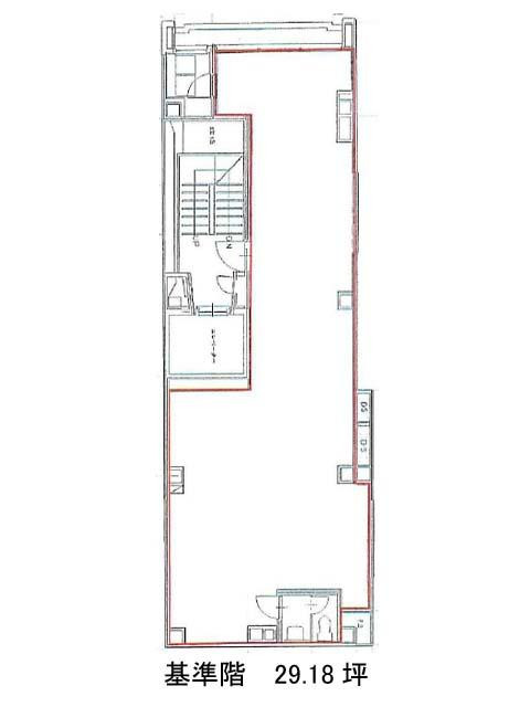
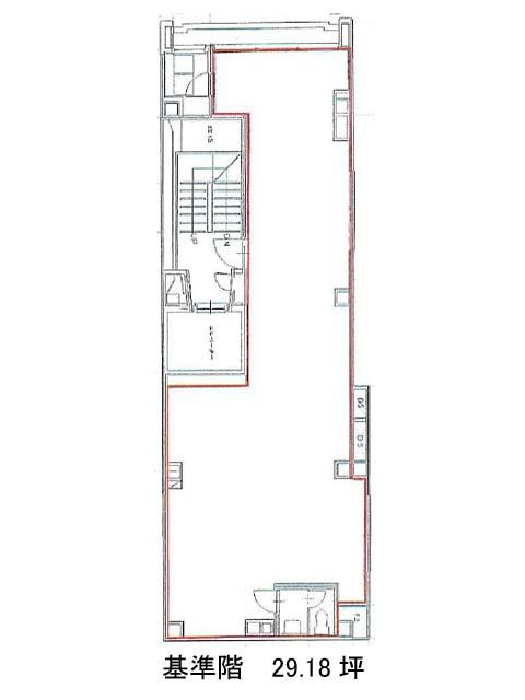
4 29.18坪 募集終了
5 29.18坪 募集終了
6 29.18坪 募集終了
7 29.18坪 募集終了
8 29.18坪 募集終了
9 29.18坪 募集終了

貸事務所・賃貸オフィスを最寄駅から探す

貸事務所・賃貸オフィスを最寄駅の沿線から探す

お問合せ このビルについて問い合わせる