和孝銀座8丁目ビルの貸事務所・賃貸オフィス情報
和孝銀座8丁目ビルの貸事務所・賃貸オフィス情報
和孝銀座8丁目ビル
- エレベーター
- 個別空調
- 新耐震基準
和孝銀座8丁目ビルの空室フロアリスト
| 階数 | 面積 | 賃料+共益費 | 保証金 | 入居時期 | 更新料 | 償却費 | 礼金 | 検討 | 平面図 | 詳細 |
|---|---|---|---|---|---|---|---|---|---|---|
| 8 | 21.87坪 |
529,254円24,200円/坪
|
481万円
|
2026年7月上旬 | なし | なし | なし |
和孝銀座8丁目ビルの物件情報
和孝銀座8丁目ビル(中央区銀座)は新橋駅徒歩5分、東銀座駅徒歩6分、汐留駅徒歩6分の賃貸オフィスです。
和孝銀座8丁目ビルのアクセス
和孝銀座8丁目ビルの募集終了区画
| 階数 | 面積 | 賃料+共益費 | 保証金 | 入居時期 | 更新料 | 償却費 | 礼金 | 平面図 | 詳細 |
|---|---|---|---|---|---|---|---|---|---|
| 地下1 | 20.50坪 | − | − | 募集終了 | − | − | − | ||
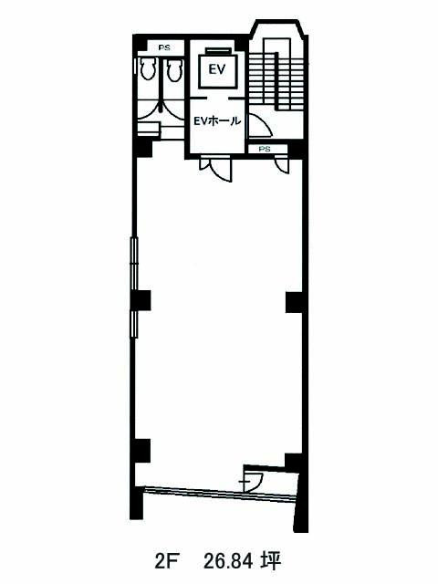
| 2 | 26.84坪 | − | − | 募集終了 | − | − | − | ||
| 3 | 28.44坪 | − | − | 募集終了 | − | − | − | ||
| 4 | 28.44坪 | − | − | 募集終了 | − | − | − | ||
| 5 | 28.44坪 | − | − | 募集終了 | − | − | − | ||
| 6 | 28.44坪 | − | − | 募集終了 | − | − | − | ||
| 7 | 25.62坪 | − | − | 募集終了 | − | − | − | ||
| 9 | 17.94坪 | − | − | 募集終了 | − | − | − |


