0120-16-2331

【受付時間】平日 AM9:00〜PM7:00

メールでお問合せ
現在、空室がございません。

木挽ビルの貸事務所・賃貸オフィス情報

木挽ビルの貸事務所・賃貸オフィス情報

木挽ビル

物件番号
634​-​00033
所在地
東京都中央区銀座1-13-7
最寄駅
宝町駅 4分
京橋駅 5分
銀座駅 7分
竣工
1990年1月
規模
地上9階/地下1階
  • エレベーター
  • 個別空調
  • 新耐震基準

木挽ビルの空室フロアリスト

現在、空室がございません。

木挽ビルの物件情報

木挽ビル(中央区銀座)は銀座一丁目駅徒歩3分、宝町駅徒歩4分、京橋駅徒歩5分の賃貸オフィスです。

木挽ビルのアクセス

木挽ビルの募集終了区画

階数 面積 賃料+共益費 保証金 入居時期 更新料 償却費 礼金 平面図 詳細
1 27.20坪 募集終了
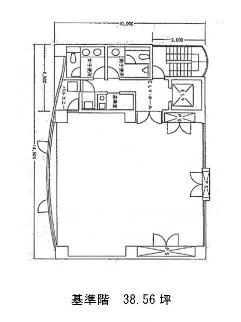
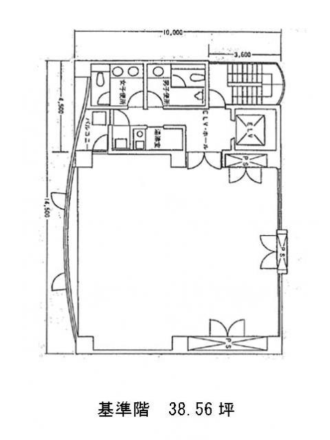
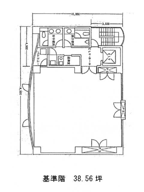
2 38.56坪 募集終了
3 38.56坪 募集終了
4 38.56坪 募集終了
5 38.56坪 募集終了
6 38.56坪 募集終了
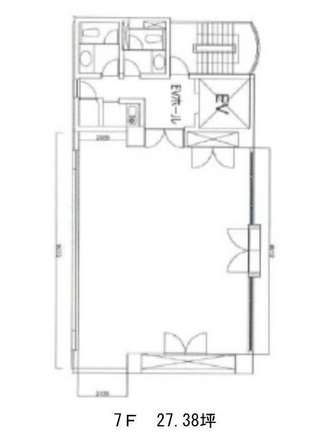
7 27.38坪 募集終了
8 27.38坪 募集終了

貸事務所・賃貸オフィスを最寄駅から探す

貸事務所・賃貸オフィスを最寄駅の沿線から探す

お問合せ このビルについて問い合わせる