ドゥーミラン銀座ビルの貸事務所・賃貸オフィス情報
ドゥーミラン銀座ビルの貸事務所・賃貸オフィス情報
ドゥーミラン銀座ビル
- エレベーター
- 個別空調
- 新耐震基準
ドゥーミラン銀座ビルの空室フロアリスト
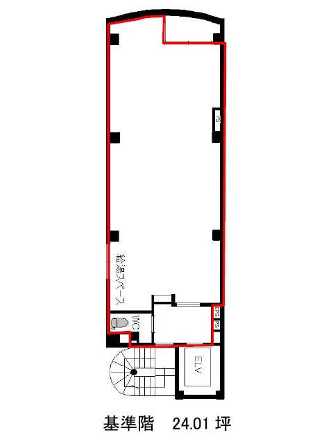
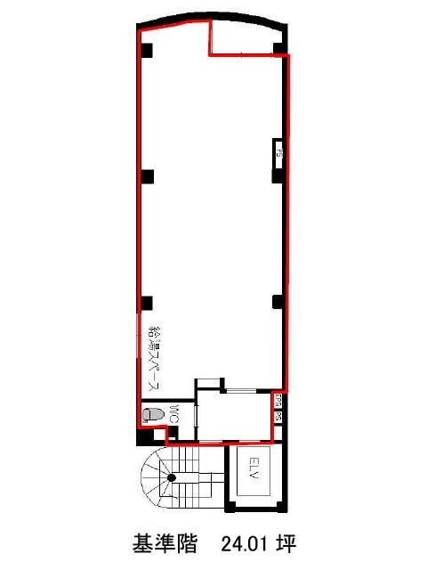
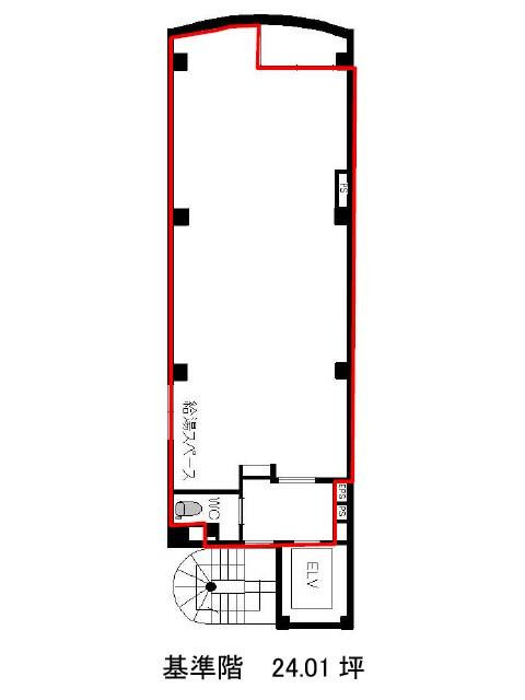
| 階数 | 面積 | 賃料+共益費 | 保証金 | 入居時期 | 更新料 | 償却費 | 礼金 | 検討 | 平面図 | 詳細 |
|---|---|---|---|---|---|---|---|---|---|---|
| 3 | 24.01坪 |
応相談応相談
|
応相談
|
即 | 新1ケ月 | 1ケ月 | なし |
ドゥーミラン銀座ビルの物件情報
ドゥーミラン銀座ビル(中央区銀座)は銀座一丁目駅徒歩3分、京橋駅徒歩4分、有楽町駅徒歩4分の賃貸オフィスです。
ドゥーミラン銀座ビルのアクセス
ドゥーミラン銀座ビルの条件に近い物件
ドゥーミラン銀座ビルの募集終了区画
| 階数 | 面積 | 賃料+共益費 | 保証金 | 入居時期 | 更新料 | 償却費 | 礼金 | 平面図 | 詳細 |
|---|---|---|---|---|---|---|---|---|---|
| 2 | 24.01坪 | − | − | 募集終了 | − | − | − | ||
| 4 | 24.07坪 | − | − | 募集終了 | − | − | − | ||
| 5 | 24.07坪 | − | − | 募集終了 | − | − | − | ||
| 6 | 24.07坪 | − | − | 募集終了 | − | − | − | ||
| 7 | 24.07坪 | − | − | 募集終了 | − | − | − | ||
| 8 | 24.07坪 | − | − | 募集終了 | − | − | − |


