新川I&Lビルの貸事務所・賃貸オフィス情報
新川I&Lビルの貸事務所・賃貸オフィス情報
新川I&Lビル
- 物件番号
- 637-00179
- 所在地
- 東京都中央区新川1-22-13
- 竣工
- 1988年11月
- 規模
- 地上10階
- エレベーター
- 個別空調
- 新耐震基準
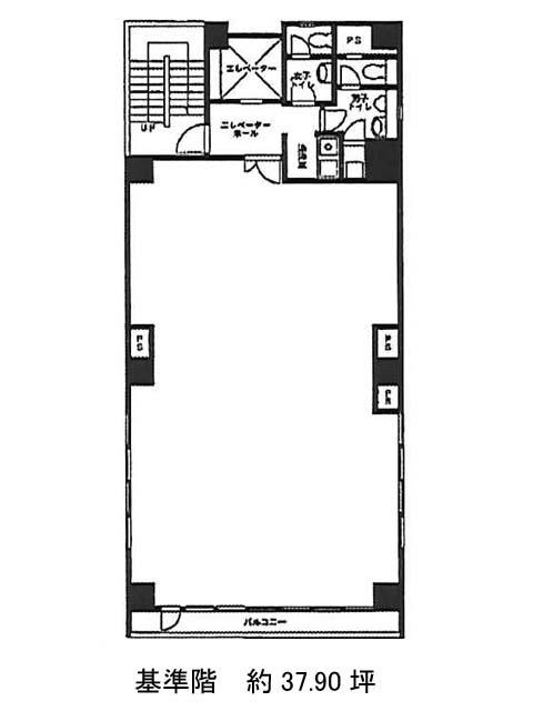
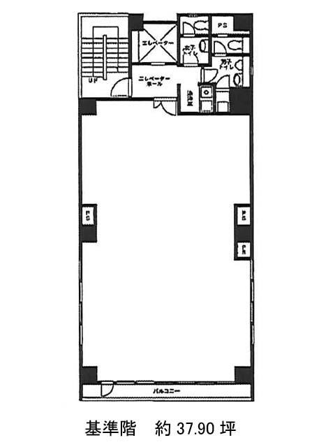
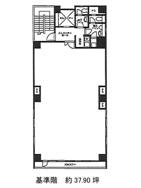
新川I&Lビルの空室フロアリスト
| 階数 | 面積 | 賃料+共益費 | 保証金 | 入居時期 | 更新料 | 償却費 | 礼金 | 検討 | 平面図 | 詳細 |
|---|---|---|---|---|---|---|---|---|---|---|
| 8 | 37.95坪 |
626,175円16,500円/坪
|
273万円
|
2026年7月上旬 | 新1ケ月 | 1ケ月 | なし | |||
| 9 | 37.95坪 |
626,175円16,500円/坪
|
182万円
|
即 | 新1ケ月 | 1ケ月 | なし |
新川I&Lビルの物件情報
新川I&Lビル(中央区新川)は茅場町駅徒歩6分、八丁堀駅徒歩9分、水天宮前駅徒歩9分の賃貸オフィスです。
新川I&Lビルのアクセス
新川I&Lビルの条件に近い物件
新川I&Lビルの募集終了区画
| 階数 | 面積 | 賃料+共益費 | 保証金 | 入居時期 | 更新料 | 償却費 | 礼金 | 平面図 | 詳細 |
|---|---|---|---|---|---|---|---|---|---|
| 3-7 | 189.59坪 | − | − | 募集終了 | − | − | − | ||
| 3 | 37.88坪 | − | − | 募集終了 | − | − | − | ||
| 4 | 37.90坪 | − | − | 募集終了 | − | − | − | ||
| 5 | 37.93坪 | − | − | 募集終了 | − | − | − | ||
| 6 | 37.93坪 | − | − | 募集終了 | − | − | − | ||
| 7 | 37.95坪 | − | − | 募集終了 | − | − | − |


