新川エフ2ビルディングの貸事務所・賃貸オフィス情報
- 物件番号
- 637-00210
新川エフ2ビルディングの貸事務所・賃貸オフィス情報
新川エフ2ビルディングの物件情報
新川エフ2ビルディング(中央区新川)は茅場町駅徒歩5分、八丁堀駅徒歩5分、水天宮前駅徒歩11分の賃貸オフィスです。
- 所在地
- 東京都中央区新川2-6-4
- 規模
- 地上6階/地下1階
- 竣工
- 1987年6月
- エレベーター
- 個別空調
- 新耐震基準
新川エフ2ビルディングの空室フロアリスト
階数 | 面積 | 賃料+共益費 | 保証金 | 入居時期 | 更新料 | 償却費 | 礼金 | 検討 | 平面図 | 詳細 |
---|---|---|---|---|---|---|---|---|---|---|
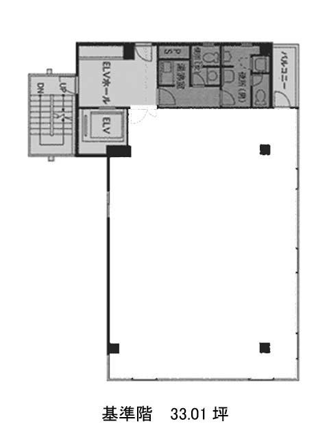
3 | 33.01坪 |
応相談応相談
|
応相談
|
即 | なし | なし | なし |
新川エフ2ビルディングの募集終了区画
階数 | 面積 | 賃料+共益費 | 保証金 | 入居時期 | 更新料 | 償却費 | 礼金 | 平面図 | 詳細 |
---|---|---|---|---|---|---|---|---|---|
地下1 | 27.35坪 | − | − | 募集終了 | − | − | − | ||
1 | 19.07坪 | − | − | 募集終了 | − | − | − | ||
1 | 19.07坪 | − | − | 募集終了 | − | − | − | ||
2 | 33.01坪 | − | − | 募集終了 | − | − | − | ||
4 | 33.01坪 | − | − | 募集終了 | − | − | − | ||
5 | 33.01坪 | − | − | 募集終了 | − | − | − |