現在、空室がございません。
第2松木ビルの貸事務所・賃貸オフィス情報
第2松木ビルの貸事務所・賃貸オフィス情報
第2松木ビル
- 新耐震基準
第2松木ビルの空室フロアリスト
現在、空室がございません。
第2松木ビルの物件情報
第二松木ビル(中央区日本橋兜町)は茅場町駅徒歩4分、日本橋駅徒歩5分、八丁堀駅徒歩7分の賃貸オフィスです。
第2松木ビルのアクセス
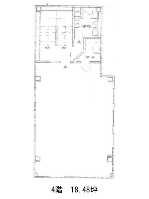
第2松木ビルの募集終了区画
| 階数 | 面積 | 賃料+共益費 | 保証金 | 入居時期 | 更新料 | 償却費 | 礼金 | 平面図 | 詳細 |
|---|---|---|---|---|---|---|---|---|---|
| 3 | 28.16坪 | − | − | 募集終了 | − | − | − | ||
| 4 | 18.48坪 | − | − | 募集終了 | − | − | − |


