0120-16-2331

【受付時間】平日 AM9:00〜PM7:00

メールでお問合せ

兜町第3ビルの貸事務所・賃貸オフィス情報

兜町第3ビルの貸事務所・賃貸オフィス情報

兜町第3ビル

物件番号
645​-​00035
所在地
東京都中央区日本橋兜町12-7
最寄駅
竣工
1971年10月
規模
地上7階
  • エレベーター
  • 個別空調
  • 旧耐震基準

兜町第3ビルの空室フロアリスト

階数 面積 賃料+共益費 保証金 入居時期 更新料 償却費 礼金 検討 平面図 詳細
1 19.20坪
380,160円19,800円/坪
207万円
2026年6月上旬 なし 1ケ月 1ケ月
7 18.00坪
198,000円11,000円/坪
108万円
相談 なし 1ケ月 1ケ月

兜町第3ビルの物件情報

兜町第3ビル(中央区日本橋兜町)は茅場町駅徒歩1分、日本橋駅徒歩4分、三越前駅徒歩9分の賃貸オフィスです。

兜町第3ビルのアクセス

兜町第3ビルの条件に近い物件

日証館ビル

東京都中央区日本橋兜町1-10

日証館ビル
  • 面積 21.15~26.43坪
  • 空きフロア 3
  • 最寄り駅
    茅場町駅 徒歩5分

八重洲カトウビル

東京都中央区日本橋兜町15-12

八重洲カトウビル
  • 面積 21.40~25.88坪
  • 空きフロア 2
  • 最寄り駅
    茅場町駅 徒歩4分

貸事務所・賃貸オフィスを最寄駅から探す

貸事務所・賃貸オフィスを最寄駅の沿線から探す

兜町第3ビルの募集終了区画

階数 面積 賃料+共益費 保証金 入居時期 更新料 償却費 礼金 平面図 詳細
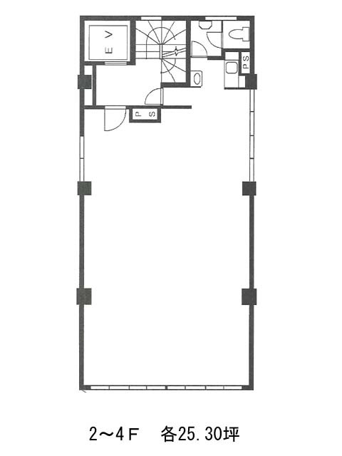
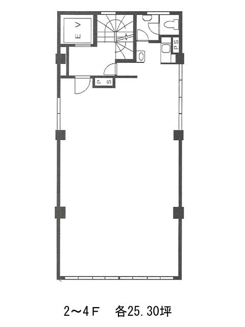
2 25.30坪 募集終了
4 25.30坪 募集終了
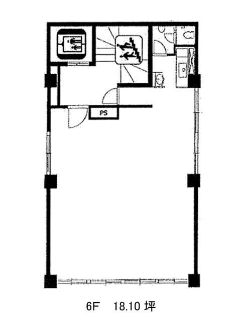
5 18.10坪 募集終了
6 18.10坪 募集終了
お問合せ このビルについて問い合わせる