現在、空室がございません。
宮永ビルの貸事務所・賃貸オフィス情報
宮永ビルの貸事務所・賃貸オフィス情報
宮永ビル
- 物件番号
- 648-00158
- 所在地
- 東京都中央区日本橋室町1-10-1
- 竣工
- 1991年2月
- 規模
- 地上5階/地下1階
- エレベーター
- 個別空調
- 新耐震基準
宮永ビルの空室フロアリスト
現在、空室がございません。
宮永ビルの物件情報
宮永ビル(中央区日本橋室町)は三越前駅徒歩2分、日本橋駅徒歩5分、新日本橋駅徒歩6分の賃貸オフィスです。
宮永ビルのアクセス
宮永ビルの募集終了区画
| 階数 | 面積 | 賃料+共益費 | 保証金 | 入居時期 | 更新料 | 償却費 | 礼金 | 平面図 | 詳細 |
|---|---|---|---|---|---|---|---|---|---|
| 地下1 | 29.75坪 | − | − | 募集終了 | − | − | − | ||
| 1 | 23.11坪 | − | − | 募集終了 | − | − | − | ||
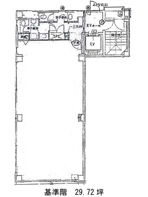
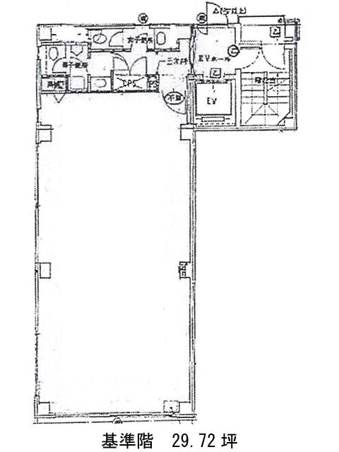
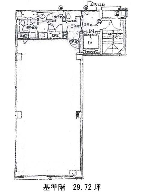
| 2 | 29.72坪 | − | − | 募集終了 | − | − | − | ||
| 3 | 29.72坪 | − | − | 募集終了 | − | − | − | ||
| 4 | 29.72坪 | − | − | 募集終了 | − | − | − | ||
| 5 | 19.25坪 | − | − | 募集終了 | − | − | − |


