DKサンビルの貸事務所・賃貸オフィス情報
DKサンビルの貸事務所・賃貸オフィス情報
DKサンビル
- 物件番号
- 648-00030
- 所在地
- 東京都中央区日本橋室町4-2-17
- 竣工
- 1983年5月
- 規模
- 地上8階/地下1階
- エレベーター
- 個別空調
- 駐車場
- 新耐震基準
DKサンビルの空室フロアリスト
| 階数 | 面積 | 賃料+共益費 | 保証金 | 入居時期 | 更新料 | 償却費 | 礼金 | 検討 | 平面図 | 詳細 |
|---|---|---|---|---|---|---|---|---|---|---|
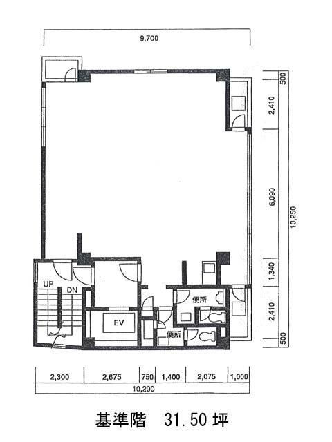
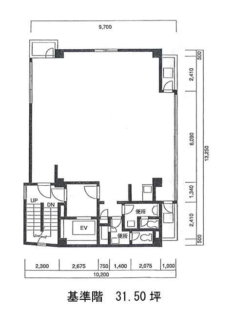
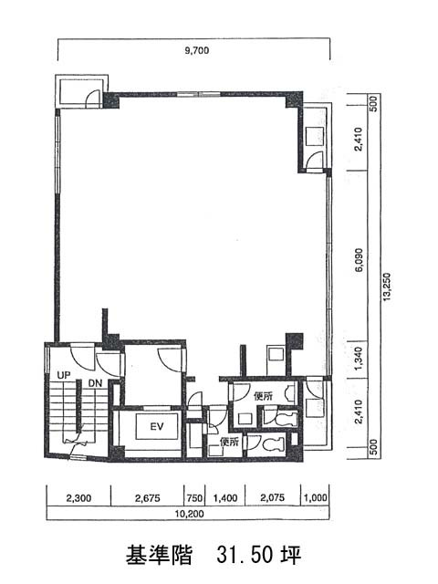
| 3 | 31.50坪 |
658,350円20,900円/坪
|
488万円
|
2026年9月中旬 | 新1ケ月 | 1ケ月 | なし |
DKサンビルの物件情報
DKサンビル(中央区日本橋室町)は新日本橋駅徒歩3分、神田駅徒歩3分、三越前駅徒歩5分の賃貸オフィスです。
DKサンビルのアクセス
DKサンビルの条件に近い物件
DKサンビルの募集終了区画
| 階数 | 面積 | 賃料+共益費 | 保証金 | 入居時期 | 更新料 | 償却費 | 礼金 | 平面図 | 詳細 |
|---|---|---|---|---|---|---|---|---|---|
| 地下1 | 24.00坪 | − | − | 募集終了 | − | − | − | ||
| 地下1 | 31.71坪 | − | − | 募集終了 | − | − | − | ||
| 1 | 25.00坪 | − | − | 募集終了 | − | − | − | ||
| 2 | 31.50坪 | − | − | 募集終了 | − | − | − | ||
| 4 | 31.50坪 | − | − | 募集終了 | − | − | − | ||
| 5 | 31.50坪 | − | − | 募集終了 | − | − | − | ||
| 6 | 29.50坪 | − | − | 募集終了 | − | − | − | ||
| 7 | 23.00坪 | − | − | 募集終了 | − | − | − | ||
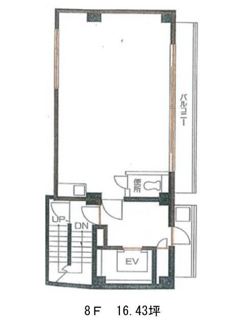
| 8 | 16.43坪 | − | − | 募集終了 | − | − | − |


