バンセイ室町ビルの貸事務所・賃貸オフィス情報
バンセイ室町ビルの貸事務所・賃貸オフィス情報
バンセイ室町ビル
- 物件番号
- 648-00049
- 所在地
- 東京都中央区日本橋室町4-3-12
- 竣工
- 1997年9月
- 規模
- 地上10階/地下1階
- エレベーター
- 個別空調
- 新耐震基準
バンセイ室町ビルの空室フロアリスト
| 階数 | 面積 | 賃料+共益費 | 保証金 | 入居時期 | 更新料 | 償却費 | 礼金 | 検討 | 平面図 | 詳細 |
|---|---|---|---|---|---|---|---|---|---|---|
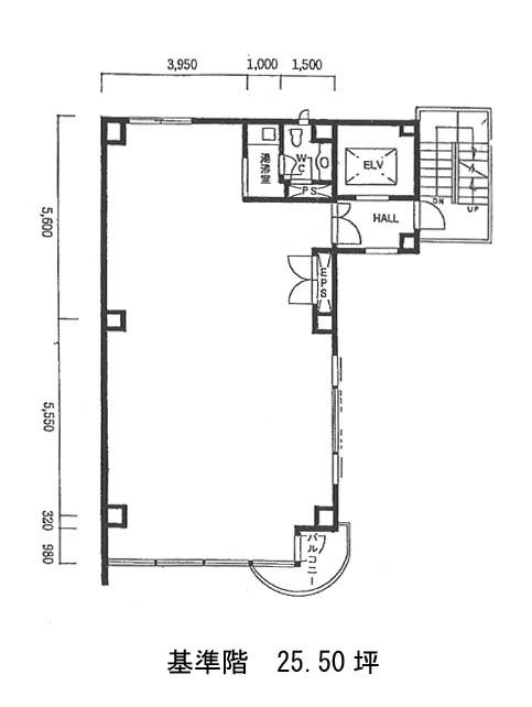
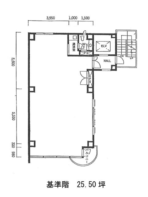
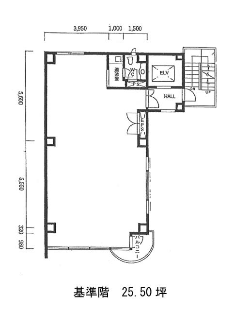
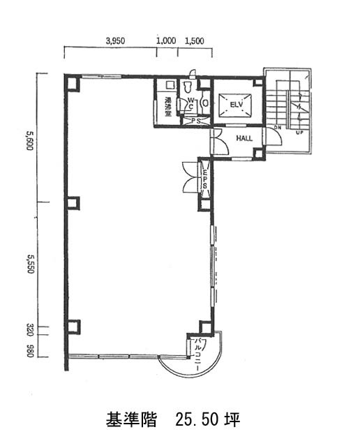
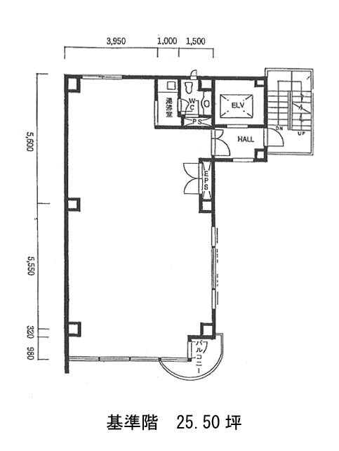
| 5 | 25.50坪 |
645,150円25,300円/坪
|
586万円
|
2026年6月上旬 | 新1ケ月 | 2ケ月 | なし |
バンセイ室町ビルの物件情報
バンセイ室町ビル(中央区日本橋室町)は新日本橋駅徒歩2分、三越前駅徒歩4分、神田駅徒歩4分の賃貸オフィスです。
バンセイ室町ビルのアクセス
バンセイ室町ビルの条件に近い物件
バンセイ室町ビルの募集終了区画
| 階数 | 面積 | 賃料+共益費 | 保証金 | 入居時期 | 更新料 | 償却費 | 礼金 | 平面図 | 詳細 |
|---|---|---|---|---|---|---|---|---|---|
| 2 | 25.50坪 | − | − | 募集終了 | − | − | − | ||
| 3 | 25.50坪 | − | − | 募集終了 | − | − | − | ||
| 4 | 25.50坪 | − | − | 募集終了 | − | − | − | ||
| 7 | 25.50坪 | − | − | 募集終了 | − | − | − | ||
| 9 | 25.50坪 | − | − | 募集終了 | − | − | − | ||
| 10 | 25.50坪 | − | − | 募集終了 | − | − | − |


