NST小網町ビルの貸事務所・賃貸オフィス情報
NST小網町ビルの貸事務所・賃貸オフィス情報
NST小網町ビル
- 物件番号
- 651-00027
- 所在地
- 東京都中央区日本橋小網町9-6
- 竣工
- 1987年10月
- 規模
- 地上7階/地下1階
- エレベーター
- 個別空調
- 新耐震基準
NST小網町ビルの空室フロアリスト
| 階数 | 面積 | 賃料+共益費 | 保証金 | 入居時期 | 更新料 | 償却費 | 礼金 | 検討 | 平面図 | 詳細 |
|---|---|---|---|---|---|---|---|---|---|---|
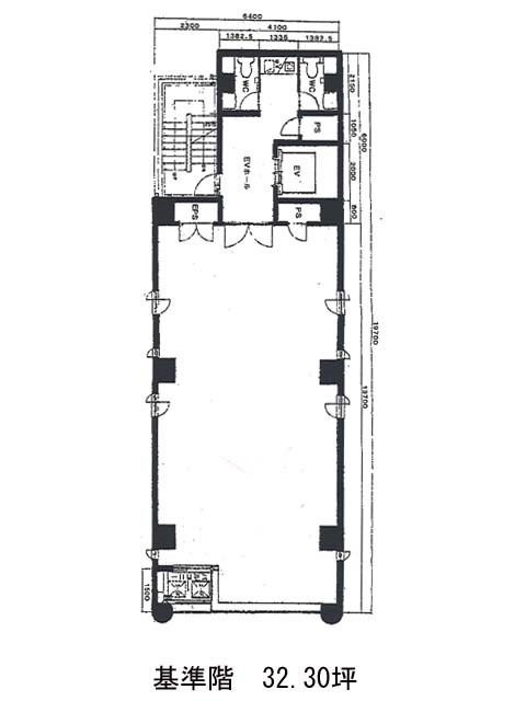
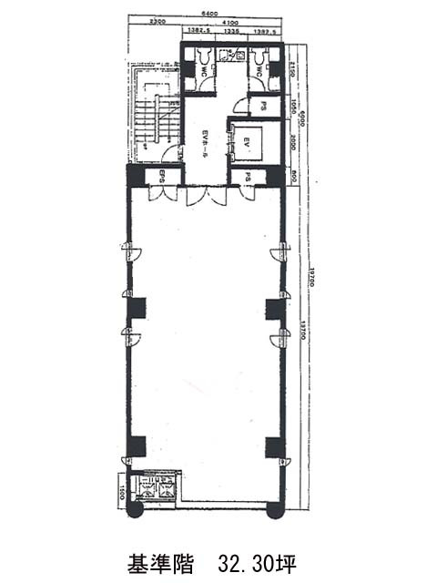
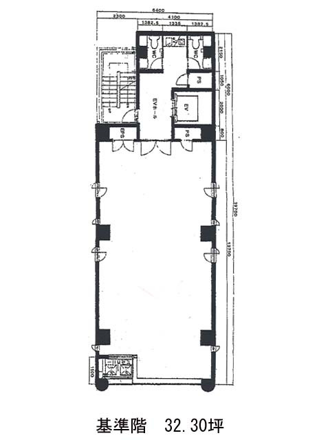
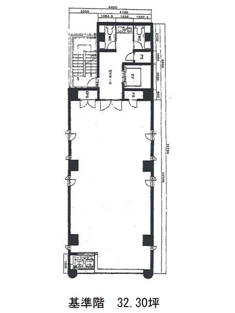
| 4 | 32.30坪 |
応相談応相談
|
応相談
|
即 | 新1ケ月 | 10% | 1ケ月 |
NST小網町ビルの物件情報
NST小網町ビル(中央区日本橋小網町)は茅場町駅徒歩5分、人形町駅徒歩6分、水天宮前駅徒歩6分の賃貸オフィスです。
NST小網町ビルのアクセス
NST小網町ビルの条件に近い物件
NST小網町ビルの募集終了区画
| 階数 | 面積 | 賃料+共益費 | 保証金 | 入居時期 | 更新料 | 償却費 | 礼金 | 平面図 | 詳細 |
|---|---|---|---|---|---|---|---|---|---|
| 地下1 | 35.82坪 | − | − | 募集終了 | − | − | − | ||
| 2 | 32.30坪 | − | − | 募集終了 | − | − | − | ||
| 3 | 32.30坪 | − | − | 募集終了 | − | − | − | ||
| 5 | 32.30坪 | − | − | 募集終了 | − | − | − | ||
| 6 | 28.75坪 | − | − | 募集終了 | − | − | − |


