0120-16-2331

【受付時間】平日 AM9:00〜PM7:00

メールでお問合せ

オーチュー小網町ビルの貸事務所・賃貸オフィス情報

オーチュー小網町ビルの貸事務所・賃貸オフィス情報

オーチュー小網町ビル

物件番号
651​-​00062
所在地
東京都中央区日本橋小網町13-2
最寄駅
竣工
1987年2月
規模
地上7階/地下1階
  • エレベーター
  • 個別空調
  • 新耐震基準

オーチュー小網町ビルの空室フロアリスト

階数 面積 賃料+共益費 保証金 入居時期 更新料 償却費 礼金 検討 平面図 詳細
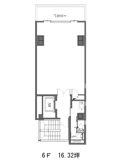
6 16.32坪
330,000円20,221円/坪
82万円
相談 なし なし なし

オーチュー小網町ビルの物件情報

オーチュー小網町ビル(中央区日本橋小網町)は茅場町駅徒歩5分、人形町駅徒歩6分、水天宮前駅徒歩6分の賃貸オフィスです。

オーチュー小網町ビルのアクセス

オーチュー小網町ビルの条件に近い物件

貸事務所・賃貸オフィスを最寄駅から探す

貸事務所・賃貸オフィスを最寄駅の沿線から探す

オーチュー小網町ビルの募集終了区画

階数 面積 賃料+共益費 保証金 入居時期 更新料 償却費 礼金 平面図 詳細
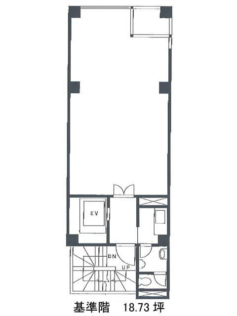
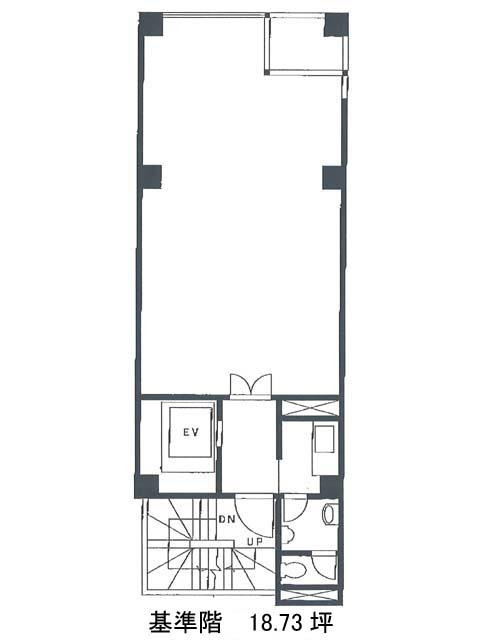
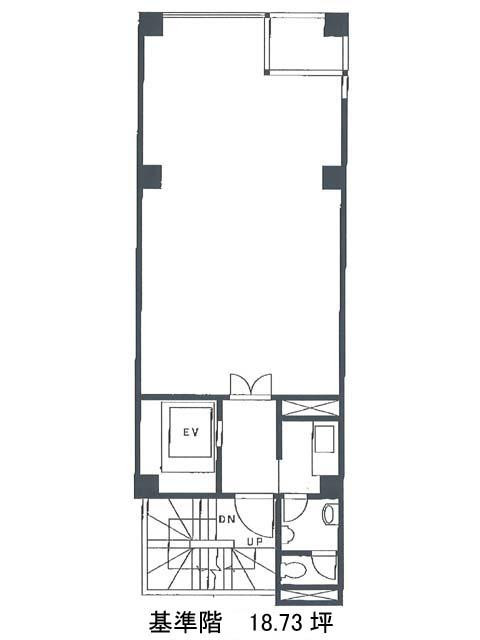
3 18.73坪 募集終了
4 18.73坪 募集終了
5 18.73坪 募集終了
お問合せ このビルについて問い合わせる