第1篠原ビルの貸事務所・賃貸オフィス情報
第1篠原ビルの貸事務所・賃貸オフィス情報
第1篠原ビル
- 物件番号
- 652-00049
- 所在地
- 東京都中央区日本橋人形町3-2-5
- 竣工
- 1968年3月
- 規模
- 地上5階/地下1階
- 個別空調
- 旧耐震基準
第1篠原ビルの空室フロアリスト
| 階数 | 面積 | 賃料+共益費 | 保証金 | 入居時期 | 更新料 | 償却費 | 礼金 | 検討 | 平面図 | 詳細 |
|---|---|---|---|---|---|---|---|---|---|---|
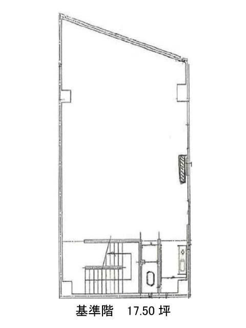
| 2 | 17.50坪 |
198,000円11,314円/坪
|
108万円
|
即 | 新1ケ月 | なし | 1ケ月 |
第1篠原ビルの物件情報
第1篠原ビル(中央区日本橋人形町)は人形町駅徒歩3分、小伝馬町駅徒歩7分、水天宮前駅徒歩7分の賃貸オフィスです。
第1篠原ビルのアクセス
第1篠原ビルの条件に近い物件
第1篠原ビルの募集終了区画
| 階数 | 面積 | 賃料+共益費 | 保証金 | 入居時期 | 更新料 | 償却費 | 礼金 | 平面図 | 詳細 |
|---|---|---|---|---|---|---|---|---|---|
| 地下1 | 18.50坪 | − | − | 募集終了 | − | − | − | ||
| 3 | 17.50坪 | − | − | 募集終了 | − | − | − | ||
| 4 | 17.50坪 | − | − | 募集終了 | − | − | − |


