7山京ビルの貸事務所・賃貸オフィス情報
7山京ビルの貸事務所・賃貸オフィス情報
7山京ビル
- エレベーター
- 個別空調
- 駐車場
- 新耐震基準
7山京ビルの空室フロアリスト
| 階数 | 面積 | 賃料+共益費 | 保証金 | 入居時期 | 更新料 | 償却費 | 礼金 | 検討 | 平面図 | 詳細 |
|---|---|---|---|---|---|---|---|---|---|---|
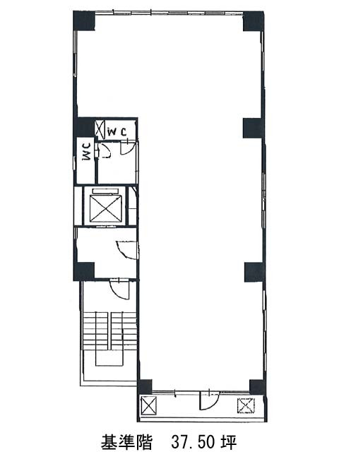
| 2 | 37.50坪 |
464,750円12,393円/坪
|
206万円
|
即 | 新1ケ月 | 1ケ月 | 1ケ月 |
7山京ビルの物件情報
7山京ビル(中央区日本橋箱崎町)は水天宮前駅徒歩3分、茅場町駅徒歩7分、人形町駅徒歩9分の賃貸オフィスです。
7山京ビルのアクセス
7山京ビルの募集終了区画
| 階数 | 面積 | 賃料+共益費 | 保証金 | 入居時期 | 更新料 | 償却費 | 礼金 | 平面図 | 詳細 |
|---|---|---|---|---|---|---|---|---|---|
| 3 | 37.50坪 | − | − | 募集終了 | − | − | − | ||
| 4 | 37.50坪 | − | − | 募集終了 | − | − | − | ||
| 5 | 37.50坪 | − | − | 募集終了 | − | − | − | ||
| 6 | 37.50坪 | − | − | 募集終了 | − | − | − | ||
| 7 | 37.50坪 | − | − | 募集終了 | − | − | − | ||
| 8 | 37.50坪 | − | − | 募集終了 | − | − | − |


