箱崎リージェントビルの貸事務所・賃貸オフィス情報
箱崎リージェントビルの貸事務所・賃貸オフィス情報
箱崎リージェントビル
- エレベーター
- 個別空調
- 駐車場
- 新耐震基準
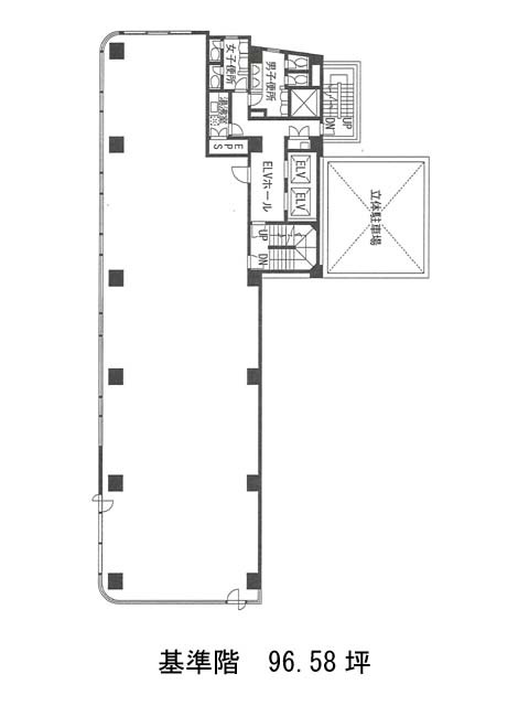
箱崎リージェントビルの空室フロアリスト
| 階数 | 面積 | 賃料+共益費 | 保証金 | 入居時期 | 更新料 | 償却費 | 礼金 | 検討 | 平面図 | 詳細 |
|---|---|---|---|---|---|---|---|---|---|---|
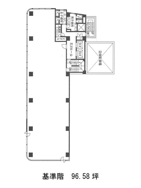
| 5 | 96.58坪 |
応相談応相談
|
応相談
|
2026年5月上旬 | なし | なし | なし |
箱崎リージェントビルの物件情報
箱崎リージェントビル(中央区日本橋箱崎町)は水天宮前駅徒歩3分、茅場町駅徒歩7分、人形町駅徒歩9分の賃貸オフィスです。
箱崎リージェントビルのアクセス
箱崎リージェントビルの募集終了区画
| 階数 | 面積 | 賃料+共益費 | 保証金 | 入居時期 | 更新料 | 償却費 | 礼金 | 平面図 | 詳細 |
|---|---|---|---|---|---|---|---|---|---|
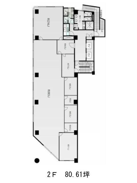
| 2 | 89.27坪 | − | − | 募集終了 | − | − | − | ||
| 3 | 96.58坪 | − | − | 募集終了 | − | − | − | ||
| 4 | 96.58坪 | − | − | 募集終了 | − | − | − | ||
| 6 | 96.58坪 | − | − | 募集終了 | − | − | − | ||
| 7 | 96.58坪 | − | − | 募集終了 | − | − | − |


