現在、空室がございません。
マックス本社ビル別館の貸事務所・賃貸オフィス情報
マックス本社ビル別館の貸事務所・賃貸オフィス情報
マックス本社ビル別館
- エレベーター
- 個別空調
- 駐車場
- 新耐震基準
マックス本社ビル別館の空室フロアリスト
現在、空室がございません。
マックス本社ビル別館の物件情報
マックス本社ビル別館(中央区日本橋箱崎町)は水天宮前駅徒歩5分、茅場町駅徒歩5分、八丁堀駅徒歩10分の賃貸オフィスです。
マックス本社ビル別館のアクセス
マックス本社ビル別館の募集終了区画
| 階数 | 面積 | 賃料+共益費 | 保証金 | 入居時期 | 更新料 | 償却費 | 礼金 | 平面図 | 詳細 |
|---|---|---|---|---|---|---|---|---|---|
| 2 | 57.62坪 | − | − | 募集終了 | − | − | − | ||
| 3 | 65.52坪 | − | − | 募集終了 | − | − | − | ||
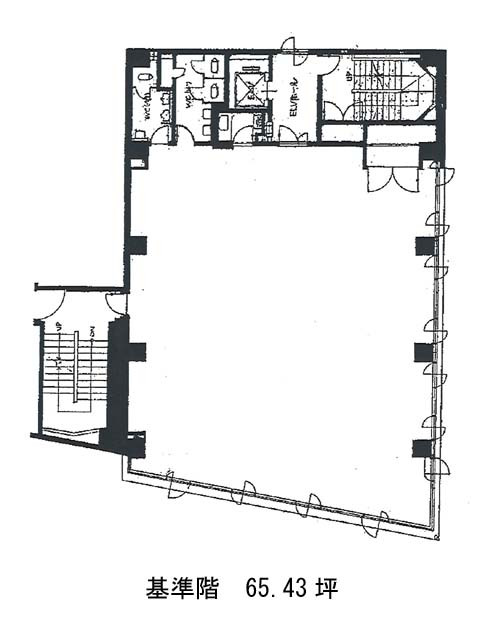
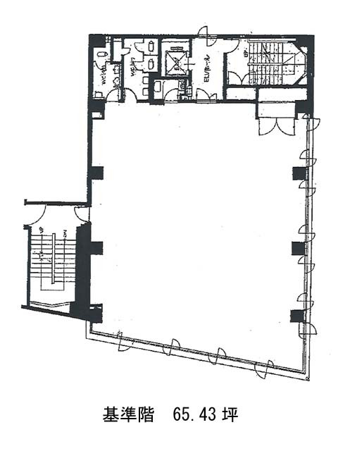
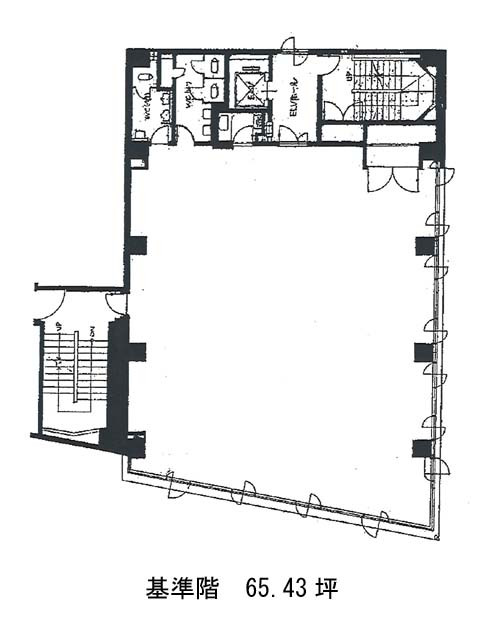
| 4 | 65.43坪 | − | − | 募集終了 | − | − | − | ||
| 5 | 65.43坪 | − | − | 募集終了 | − | − | − | ||
| 6 | 65.43坪 | − | − | 募集終了 | − | − | − |


