カントー第2別館の貸事務所・賃貸オフィス情報
カントー第2別館の貸事務所・賃貸オフィス情報
カントー第2別館
- エレベーター
- 個別空調
- 駐車場
- 新耐震基準
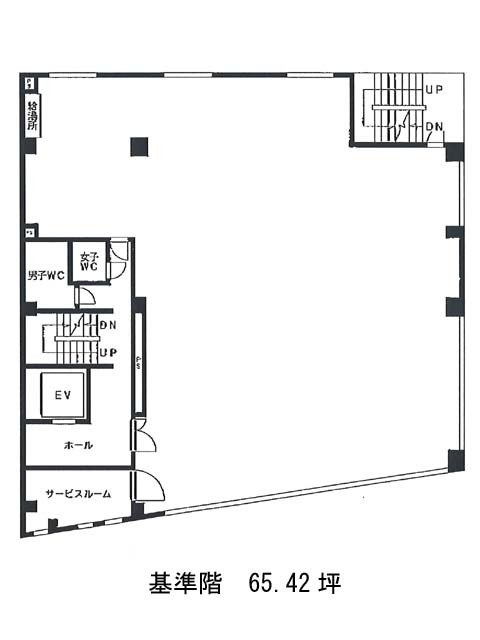
カントー第2別館の空室フロアリスト
| 階数 | 面積 | 賃料+共益費 | 保証金 | 入居時期 | 更新料 | 償却費 | 礼金 | 検討 | 平面図 | 詳細 |
|---|---|---|---|---|---|---|---|---|---|---|
| 7 | 65.42坪 |
935,506円14,300円/坪
|
425万円
|
2026年4月上旬 | 新1ケ月 | なし | なし |
カントー第2別館の物件情報
カントー第2別館(中央区日本橋箱崎町)は水天宮前駅徒歩5分、茅場町駅徒歩5分、八丁堀駅徒歩10分の賃貸オフィスです。
カントー第2別館のアクセス
カントー第2別館の募集終了区画
| 階数 | 面積 | 賃料+共益費 | 保証金 | 入居時期 | 更新料 | 償却費 | 礼金 | 平面図 | 詳細 |
|---|---|---|---|---|---|---|---|---|---|
| 6 | 65.42坪 | − | − | 募集終了 | − | − | − |


