0120-16-2331

【受付時間】平日 AM9:00〜PM7:00

メールでお問合せ
現在、空室がございません。

新城ビルの貸事務所・賃貸オフィス情報

新城ビルの貸事務所・賃貸オフィス情報

新城ビル

物件番号
659​-​00037
所在地
東京都中央区日本橋堀留町1-1-13
最寄駅
竣工
1972年1月
規模
地上5階
  • エレベーター
  • 旧耐震基準

新城ビルの空室フロアリスト

現在、空室がございません。

新城ビルの物件情報

新城ビル(中央区日本橋堀留町)は人形町駅徒歩4分、小伝馬町駅徒歩7分、水天宮前駅徒歩8分の賃貸オフィスです。

新城ビルのアクセス

新城ビルの募集終了区画

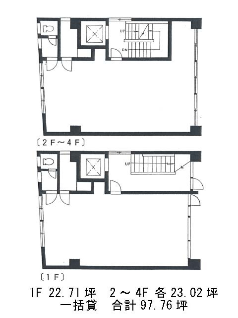
階数 面積 賃料+共益費 保証金 入居時期 更新料 償却費 礼金 平面図 詳細
97.75坪 募集終了
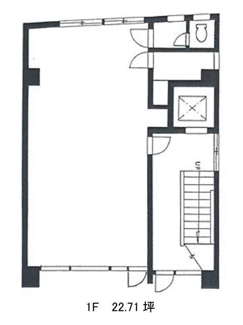
1 22.71坪 募集終了
2 23.02坪 募集終了
3 23.02坪 募集終了
4 23.02坪 募集終了

貸事務所・賃貸オフィスを最寄駅から探す

貸事務所・賃貸オフィスを最寄駅の沿線から探す

お問合せ このビルについて問い合わせる