古川ビルの貸事務所・賃貸オフィス情報
古川ビルの貸事務所・賃貸オフィス情報
古川ビル
- 物件番号
- 662-00168
- 所在地
- 東京都中央区日本橋蛎殻町1-18-1
- 竣工
- 1977年3月
- 規模
- 地上5階
- 旧耐震基準
古川ビルの空室フロアリスト
| 階数 | 面積 | 賃料+共益費 | 保証金 | 入居時期 | 更新料 | 償却費 | 礼金 | 検討 | 平面図 | 詳細 |
|---|---|---|---|---|---|---|---|---|---|---|
| 4 | 18.03坪 |
148,509円8,236円/坪
|
72万円
|
相談 | 新1ケ月 | 2ケ月 | なし |
古川ビルの物件情報
古川ビル(中央区日本橋蛎殻町)は水天宮前駅徒歩4分、茅場町駅徒歩6分、人形町駅徒歩6分の賃貸オフィスです。
古川ビルのアクセス
古川ビルの募集終了区画
| 階数 | 面積 | 賃料+共益費 | 保証金 | 入居時期 | 更新料 | 償却費 | 礼金 | 平面図 | 詳細 |
|---|---|---|---|---|---|---|---|---|---|
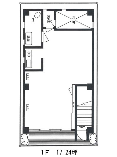
| 1 | 17.24坪 | − | − | 募集終了 | − | − | − | ||
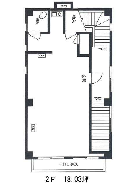
| 2 | 18.03坪 | − | − | 募集終了 | − | − | − | ||
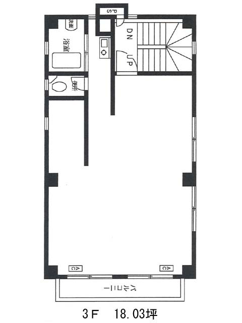
| 3 | 18.03坪 | − | − | 募集終了 | − | − | − |


