0120-16-2331

【受付時間】平日 AM9:00〜PM7:00

メールでお問合せ
現在、空室がございません。

蛎殻町ビルヂングの貸事務所・賃貸オフィス情報

蛎殻町ビルヂングの貸事務所・賃貸オフィス情報

蛎殻町ビルヂング

物件番号
662​-​00036
所在地
東京都中央区日本橋蛎殻町1-10-7
最寄駅
三越前駅 10分
日本橋駅 10分
竣工
1987年3月
規模
地上6階/地下1階
  • エレベーター
  • 個別空調
  • 新耐震基準

蛎殻町ビルヂングの空室フロアリスト

現在、空室がございません。

蛎殻町ビルヂングの物件情報

蛎殻町ビルヂング(中央区日本橋蛎殻町)は人形町駅徒歩4分、水天宮前駅徒歩4分、茅場町駅徒歩7分の賃貸オフィスです。

蛎殻町ビルヂングのアクセス

蛎殻町ビルヂングの募集終了区画

階数 面積 賃料+共益費 保証金 入居時期 更新料 償却費 礼金 平面図 詳細
2 54.63坪 募集終了
3 54.63坪 募集終了
4 54.63坪 募集終了
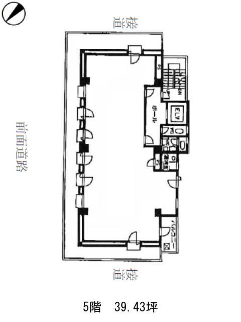
5 39.43坪 募集終了
6 23.40坪 募集終了

貸事務所・賃貸オフィスを最寄駅から探す

貸事務所・賃貸オフィスを最寄駅の沿線から探す

お問合せ このビルについて問い合わせる