GEMINI-ONEの貸事務所・賃貸オフィス情報
GEMINI-ONEの貸事務所・賃貸オフィス情報
GEMINI-ONE
- 物件番号
- 662-00074
- 所在地
- 東京都中央区日本橋蛎殻町1-9-5
- 竣工
- 1989年12月
- 規模
- 地上5階/地下2階
- エレベーター
- 個別空調
- 新耐震基準
GEMINI-ONEの空室フロアリスト
| 階数 | 面積 | 賃料+共益費 | 保証金 | 入居時期 | 更新料 | 償却費 | 礼金 | 検討 | 平面図 | 詳細 |
|---|---|---|---|---|---|---|---|---|---|---|
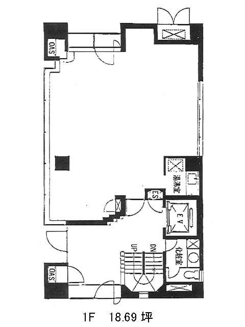
| 1 | 18.69坪 |
339,223円18,150円/坪
|
170万円
|
2026年5月下旬 | 新1ケ月 | 1ケ月 | なし |
GEMINI-ONEの物件情報
GEMINI-ONE(中央区日本橋蛎殻町)は水天宮前駅徒歩4分、人形町駅徒歩4分、茅場町駅徒歩6分の賃貸オフィスです。
GEMINI-ONEのアクセス
GEMINI-ONEの条件に近い物件
GEMINI-ONEの募集終了区画
| 階数 | 面積 | 賃料+共益費 | 保証金 | 入居時期 | 更新料 | 償却費 | 礼金 | 平面図 | 詳細 |
|---|---|---|---|---|---|---|---|---|---|
| 2 | 24.50坪 | − | − | 募集終了 | − | − | − | ||
| 3 | 24.50坪 | − | − | 募集終了 | − | − | − | ||
| 4 | 24.50坪 | − | − | 募集終了 | − | − | − |


